Автономная работа ГИС-Эколог
-
eko-ksvАвтор темы
- Заслуженный эколог
- Сообщения: 1728
- Зарегистрирован: 24 фев 2007, 15:35
- Награды: 3
- Откуда: Ростов-на-Дону
- Благодарил (а): 345 раз
- Поблагодарили: 558 раз
Автономная работа ГИС-Эколог
Уважаемые Интеграловцы! Скажите, можно ли автономно запустить программу ГИС-Эколог для создания топоосновы, или это возможно только из программы УПРЗА-Эколог 4 в любом объекте, а потом связать ее с нужным предприятием?
-
Yasva
- Эколог
- Сообщения: 238
- Зарегистрирован: 08 окт 2013, 22:00
- Награды: 2
- Откуда: Санкт-Петербург
- Благодарил (а): 21 раз
- Поблагодарили: 97 раз
Re: Автономная работа ГИС-Эколог
путь по умолчанию C:\Program Files (x86)\Integral\Ecolog4\EcoMap\EcoMapNM.exe запускает норм
-
Дмитрий Сальников
- Интеграл
- Сообщения: 22
- Зарегистрирован: 30 авг 2011, 15:07
- Благодарил (а): 9 раз
- Поблагодарили: 5 раз
Re: Автономная работа ГИС-Эколог
ГИС-Эколог - графический модуль трёх программ. Запустить его автономно действительно можно, но будут доступны для редактирования только пользовательские слои; служебные - принадлежат определённому расчётному модулю (Шум, УПРЗА...). Поэтому в таком режиме вы основные объекты, необходимые для расчёта, не занесёте.eko-ksv писал(а):Уважаемые Интеграловцы! Скажите, можно ли автономно запустить программу ГИС-Эколог для создания топоосновы, или это возможно только из программы УПРЗА-Эколог 4 в любом объекте, а потом связать ее с нужным предприятием?
Топооснова с источниками и застройкой создаётся в ГИС-Экологе "из" УПРЗА сразу для нужного предприятия.

-
eko-ksvАвтор темы
- Заслуженный эколог
- Сообщения: 1728
- Зарегистрирован: 24 фев 2007, 15:35
- Награды: 3
- Откуда: Ростов-на-Дону
- Благодарил (а): 345 раз
- Поблагодарили: 558 раз
Re: Автономная работа ГИС-Эколог
Да, теперь заметил. Служебные слои при автономном запуске недоступны.
Но в принципе, если сначала создать файл топоосновы с пользовательским слоем (например подложку графического файла), а потом из программы УПРЗА (или Шум) занести уже служебные слои. Такое возможно?
Но в принципе, если сначала создать файл топоосновы с пользовательским слоем (например подложку графического файла), а потом из программы УПРЗА (или Шум) занести уже служебные слои. Такое возможно?
-
Дмитрий Сальников
- Интеграл
- Сообщения: 22
- Зарегистрирован: 30 авг 2011, 15:07
- Благодарил (а): 9 раз
- Поблагодарили: 5 раз
-
Yasva
- Эколог
- Сообщения: 238
- Зарегистрирован: 08 окт 2013, 22:00
- Награды: 2
- Откуда: Санкт-Петербург
- Благодарил (а): 21 раз
- Поблагодарили: 97 раз
Re: Автономная работа ГИС-Эколог
Что-то не то с системой сохранения
1. При автономном запуске ГИС можно открыть проект, внести изменения и сохранить. При запуске ГИС из УПРЗА проект просто сохранить невозможно, можно только "сохранить как" (что напрягает созданием лишней копии), однако если закрыть Alt+F4, то программа предложит сохраниться с перезаписью файла. Тут что-то нечисто.
2. Программа не сохраняет перестановку пользовательских слоев в дереве (порядок прорисовки), просто молча не сохраняет.
1. При автономном запуске ГИС можно открыть проект, внести изменения и сохранить. При запуске ГИС из УПРЗА проект просто сохранить невозможно, можно только "сохранить как" (что напрягает созданием лишней копии), однако если закрыть Alt+F4, то программа предложит сохраниться с перезаписью файла. Тут что-то нечисто.
2. Программа не сохраняет перестановку пользовательских слоев в дереве (порядок прорисовки), просто молча не сохраняет.
-
Дмитрий Сальников
- Интеграл
- Сообщения: 22
- Зарегистрирован: 30 авг 2011, 15:07
- Благодарил (а): 9 раз
- Поблагодарили: 5 раз
Re: Автономная работа ГИС-Эколог
1. При закрытии "ГИС-Эколог" (в режиме работы "из УПРЗА"), если в проекте были сделаны изменения, программа обязательно попросит выбрать место расположения файла и новое имя (отличное от существующего). То есть, программа в этом случае не перезаписывает, также как и при "Сохранить как...".
2. Действительно так. Будем исправлять.
2. Действительно так. Будем исправлять.

-
Михаил Сухарев
- Интеграл
- Сообщения: 133
- Зарегистрирован: 19 июн 2006, 15:20
- Откуда: Санкт-Петербург
- Благодарил (а): 9 раз
- Поблагодарили: 43 раза
Re: Автономная работа ГИС-Эколог
Yasva, а для каких слоёв вы хотели поменять порядок? Может быть вам поможет настройка полупрозрачности, которая есть для каждого слоя?Yasva писал(а): 2. Программа не сохраняет перестановку пользовательских слоев в дереве (порядок прорисовки), просто молча не сохраняет.
-
Yasva
- Эколог
- Сообщения: 238
- Зарегистрирован: 08 окт 2013, 22:00
- Награды: 2
- Откуда: Санкт-Петербург
- Благодарил (а): 21 раз
- Поблагодарили: 97 раз
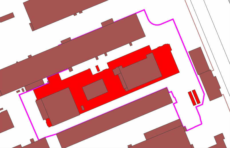
Re: Автономная работа ГИС-Эколог
Проектируемый корпус (ярко красный) и граница проектирования (алая) оказались под существующими зданиями. Точно так же дороги, ЛЭП, трубопроводы могут попасть под воду или лес. Конечно можно придумать способы добиться нужного результата, но хочется иметь логичные инструменты.Михаил Сухарев писал(а):Yasva, а для каких слоёв вы хотели поменять порядок? Может быть вам поможет настройка полупрозрачности, которая есть для каждого слоя?
З.Ы. таки если я запускаю ГИС из УПРЗА, вношу изменения и закрываю программу крестиком, то она предлагает мне просто сохраниться не создавая копию, и этот вариант мне нравится немного больше)
-
- Похожие темы
- Ответы
- Просмотры
- Последнее сообщение
-
- 27 Ответы
- 22194 Просмотры
-
Последнее сообщение Wespe
-
- 1 Ответы
- 2820 Просмотры
-
Последнее сообщение Es_can_der
-
- 3 Ответы
- 7684 Просмотры
-
Последнее сообщение nako2008
-
- 2 Ответы
- 3013 Просмотры
-
Последнее сообщение Yasva
-
- 0 Ответы
- 4099 Просмотры
-
Последнее сообщение Вадим Зыков
