[УПРЗА 4] Общие вопросы
-
Татьяна_О
- Новичок
- Сообщения: 25
- Зарегистрирован: 27 янв 2010, 11:25
- Откуда: Новосибирск
- Благодарил (а): 4 раза
- Поблагодарили: 1 раз
Re: [УПРЗА 4] Общие вопросы
Добрый день всем! Пытаюсь разобраться с УПРЗА-4. Есть вопрос: как распечатать карту с изолиниями при этом, чтобы расчетную сетку не было видно?
Re: [УПРЗА 4] Общие вопросы
Добрый день. Подскажите, по каким причинам при настройке подключения к БД может отсутствовать возможность выбрать Сетевое подключение? Доступно только Локальное.
-
Вадим Зыков
- Интеграл
- Сообщения: 5884
- Зарегистрирован: 27 июн 2005, 13:41
- Откуда: Санкт-Петербург
- Благодарил (а): 254 раза
- Поблагодарили: 2992 раза
- Контактная информация:
Re: [УПРЗА 4] Общие вопросы
toxa222, в продаже пока нет сетевого варианта программы, а с технической стороны практически все готово для реализации такой возможности. Как только в продажу поступит сетевой вариант, то пользователи, которые приобретут его, будут иметь возможность выбора сетевого пути к БД.
Интегрируй форум в Яндекс
P.S. Вопросы по работе с программами или выбору программ прошу писать либо на форуме в соответствующих темах, либо по электронной почте. В ЛС на такие вопросы не отвечаю. Прошу понять правильно.
P.S. Вопросы по работе с программами или выбору программ прошу писать либо на форуме в соответствующих темах, либо по электронной почте. В ЛС на такие вопросы не отвечаю. Прошу понять правильно.
-
Романова09
- Новичок
- Сообщения: 7
- Зарегистрирован: 21 ноя 2012, 11:01
Re: [УПРЗА 4] Общие вопросы
Здравствуйте! Скажите, есть ли возможность сохранить изолинии в УПРЗА 4 в электронном виде? Практически всегда заказчик требует раздел проекта в электронном виде. Сканировать каждую распечатанную из программы изолинию просто нет времени.
-
Михаил
- Интеграл-Клуб
- Сообщения: 160
- Зарегистрирован: 27 май 2009, 19:00
- Благодарил (а): 15 раз
- Поблагодарили: 25 раз
Re: [УПРЗА 4] Общие вопросы
Существует множество виртуальных принтеров (в т.ч. бесплатных), которые сохраняют в формате ПДФ, например.
| M! | Например: http://forum.integral.ru/viewtopic.php?f=113&t=14255 |
-
Wespe
- Заслуженный эколог
- Сообщения: 3633
- Зарегистрирован: 09 апр 2010, 19:01
- Награды: 6
- Откуда: Каракас
- Благодарил (а): 696 раз
- Поблагодарили: 717 раз
Re: [УПРЗА 4] Общие вопросы
Поиском пользуйтесь... http://forum.integral.ru/viewtopic.php? ... ter#p61592
"Трудно стало работать. Развелось много идиотов, говорящих правильные слова." (с)
Re: [УПРЗА 4] Общие вопросы
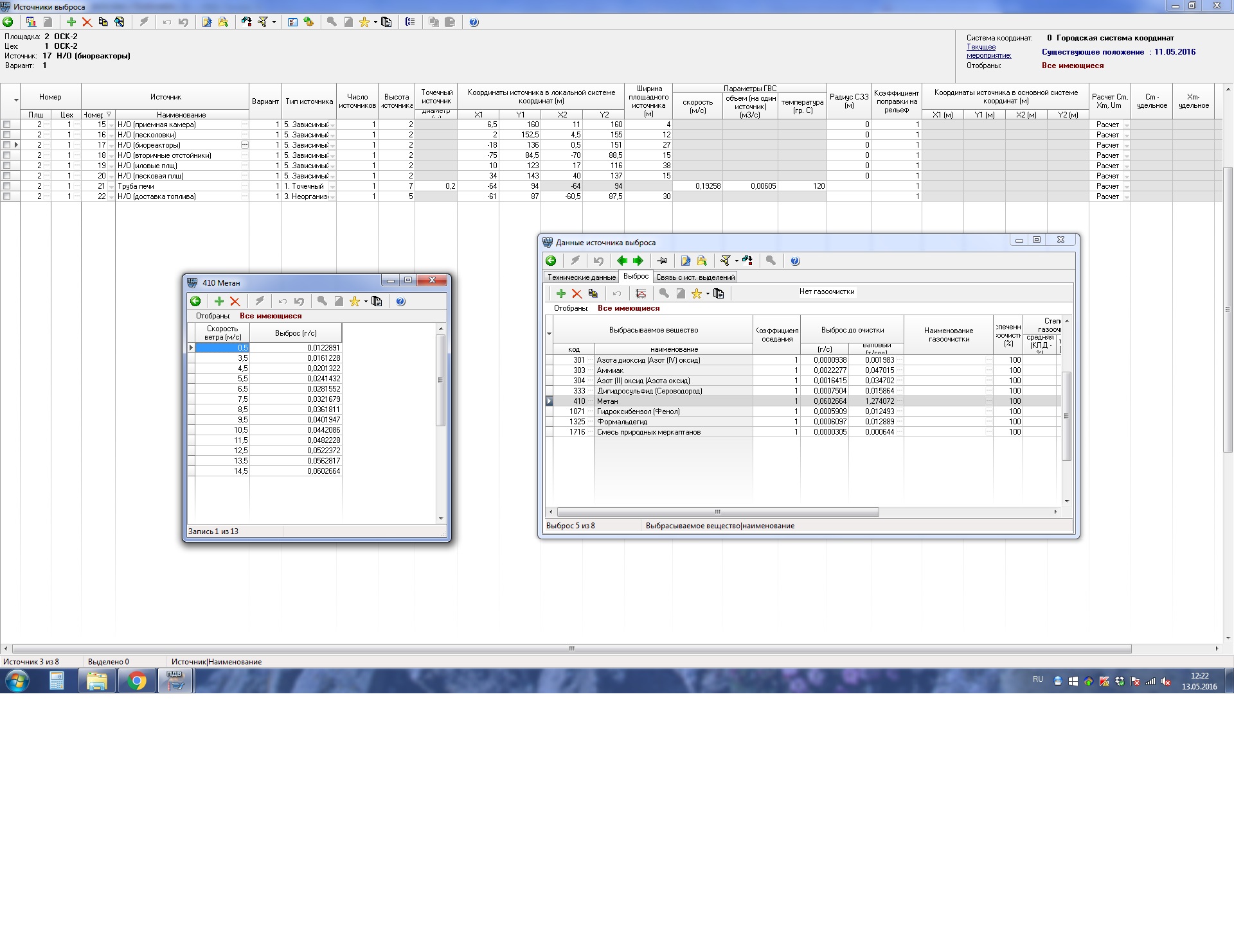
Здравствуйте! Подскажите почему программа не обновляет данные с варианта исходных данных в вариант расчета, и как можно это сделать вручную? В варианте исходных данных вижу г/с по ЗВ, а в варианте расчета нули.
-
Вадим Зыков
- Интеграл
- Сообщения: 5884
- Зарегистрирован: 27 июн 2005, 13:41
- Откуда: Санкт-Петербург
- Благодарил (а): 254 раза
- Поблагодарили: 2992 раза
- Контактная информация:
Re: [УПРЗА 4] Общие вопросы
Signa, напишите, пожалуйста, подробнее.
В каком окне ВИД и ВР вы смотрите данные. Сделайте скриншоты окон и прикрепите их к сообщению.
В каком окне ВИД и ВР вы смотрите данные. Сделайте скриншоты окон и прикрепите их к сообщению.
Интегрируй форум в Яндекс
P.S. Вопросы по работе с программами или выбору программ прошу писать либо на форуме в соответствующих темах, либо по электронной почте. В ЛС на такие вопросы не отвечаю. Прошу понять правильно.
P.S. Вопросы по работе с программами или выбору программ прошу писать либо на форуме в соответствующих темах, либо по электронной почте. В ЛС на такие вопросы не отвечаю. Прошу понять правильно.
Re: [УПРЗА 4] Общие вопросы
Вадим Зыков, задаю источники 5-типом, передаю данные в УПРЗА Эколог4, г/с максимальный видит, открываю по скоростям выдает нули. Когда рассеиваю программа пишет, что расчет целесообразен, а на картах и в отчете опять нули. Пробовала задавать 3-типом, все рассеивает и максимальные концентрации довольно большие (от 1 до 6 ПДК).
-
- Похожие темы
- Ответы
- Просмотры
- Последнее сообщение
-
- 1 Ответы
- 3075 Просмотры
-
Последнее сообщение Ефимова Наталья
