Области нормирования
-
Вадим ЗыковАвтор темы
- Интеграл
- Сообщения: 5880
- Зарегистрирован: 27 июн 2005, 13:41
- Откуда: Санкт-Петербург
- Благодарил (а): 254 раза
- Поблагодарили: 2991 раз
- Контактная информация:
Области нормирования
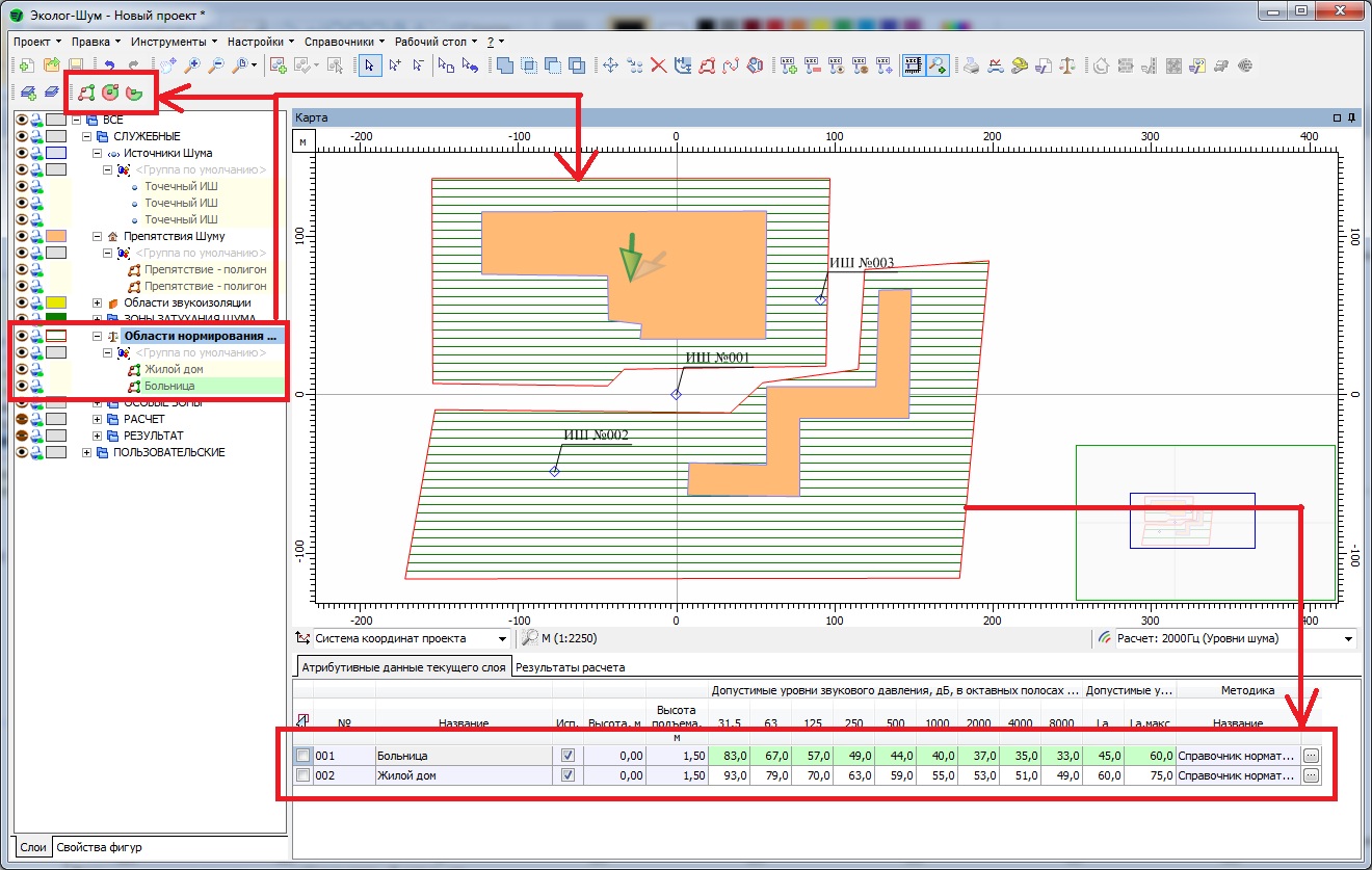
Начиная с версии 2.2 "Эколог-Шум" появился новый удобный инструмент "Нормирование шума".
Одна из областей применения инструмента – автоматическое построение области, в которой не будут соблюдены все установленные нормативы на территории. На территории может быть установлено несколько областей с разными нормативами. Например, детский садик, больница, территория жилого дома и т.д.
Работа с инструментом.
1. Обычная работа с программой "Эколог-Шум", произвели расчет для определенной расчетной площадки.
2. Создаются области нормирования с разными нормативами. 3. Из справочника или вручную задаются нормативы для территории. 4. На панели инструментов выбирается инструмент "Нормирование шума", в окне инструмента задаются нормы для остальной территории, не попавшей в особые зоны (жилой дом, больница и т.д.). 5. После нажатия кнопки "ОК" происходит расчет области, в которой ни по одной из территорий не будет превышения. В пользовательских слоях создается еще один слой "Превышение норм шума". На данном скриншоте специально скрыт ряд слоев, чтобы не отвлекать внимание, и оставлена только зона с превышением. 6. Если в вашем распоряжении вариант программы "Стандарт", то вы можете скопировать эту зону в слой СЗЗ.
Одна из областей применения инструмента – автоматическое построение области, в которой не будут соблюдены все установленные нормативы на территории. На территории может быть установлено несколько областей с разными нормативами. Например, детский садик, больница, территория жилого дома и т.д.
Работа с инструментом.
1. Обычная работа с программой "Эколог-Шум", произвели расчет для определенной расчетной площадки.
2. Создаются области нормирования с разными нормативами. 3. Из справочника или вручную задаются нормативы для территории. 4. На панели инструментов выбирается инструмент "Нормирование шума", в окне инструмента задаются нормы для остальной территории, не попавшей в особые зоны (жилой дом, больница и т.д.). 5. После нажатия кнопки "ОК" происходит расчет области, в которой ни по одной из территорий не будет превышения. В пользовательских слоях создается еще один слой "Превышение норм шума". На данном скриншоте специально скрыт ряд слоев, чтобы не отвлекать внимание, и оставлена только зона с превышением. 6. Если в вашем распоряжении вариант программы "Стандарт", то вы можете скопировать эту зону в слой СЗЗ.
Интегрируй форум в Яндекс
P.S. Вопросы по работе с программами или выбору программ прошу писать либо на форуме в соответствующих темах, либо по электронной почте. В ЛС на такие вопросы не отвечаю. Прошу понять правильно.
P.S. Вопросы по работе с программами или выбору программ прошу писать либо на форуме в соответствующих темах, либо по электронной почте. В ЛС на такие вопросы не отвечаю. Прошу понять правильно.
-
- Похожие темы
- Ответы
- Просмотры
- Последнее сообщение
-
- 3 Ответы
- 3109 Просмотры
-
Последнее сообщение LiliL
-
- 0 Ответы
- 3722 Просмотры
-
Последнее сообщение Вадим Зыков
