Шумовые экраны
Правила форума
Правила форума | Содержание раздела
Правила форума | Содержание раздела
-
ЗолотоАвтор темы
- Интеграл-Клуб
- Сообщения: 29
- Зарегистрирован: 14 апр 2008, 16:21
- Откуда: Санкт-Петербург
Шумовые экраны
Уважаемые экологи! Подскажите пожалуйста кто знает. Обязательно рассчитывать экран (начало и конец). Могу ли я просто от дома отложить по 50 метров с 2-х сторон. Или обязательно нужно обоснование?
Теги:
-
ecotwinsong
- Заслуженный эколог
- Сообщения: 412
- Зарегистрирован: 19 ноя 2008, 14:11
- Благодарил (а): 76 раз
- Поблагодарили: 34 раза
Re: Экраны
ну это ж получается объемная фигура)))))
Смотрю в зеркало... вроде ниче так... красивая... подхожу ближе.. присматриваюсь... ё-моё!!! Богиня!!!
-
tlst
- Эколог
- Сообщения: 192
- Зарегистрирован: 16 янв 2009, 21:44
- Откуда: Санкт-Петербург
- Поблагодарили: 13 раз
Re: Экраны
Я в управлении РПН боюсь даже произносить слово объемный источник шума, а уж в расчетах подобное упомянуть - упаси Боже. Я не знаю чем руководствовалась фирма интеграл и ее специалисты, когда создавали программу "Эколог-Шум" и создавали в ней такую шиуку как объемный источник шума, но я такого понятия не знаю. В случае когда источник шума находится внутри помещения (объемной фигуры, как вы сказали) я считаю прохождение звука через каждую стенку, если это конечно необходимо, и условно принимаю, что излучение звука в атмосферу происходит всей поверхностью стены.
-
ecotwinsong
- Заслуженный эколог
- Сообщения: 412
- Зарегистрирован: 19 ноя 2008, 14:11
- Благодарил (а): 76 раз
- Поблагодарили: 34 раза
Re: Экраны
я о другом спрашивала:
ecotwinsong писал(а):Подскажите, а в этой самой формуле Маекавы есть такая величина - кратчайшее расстояние от источника до кромки экрана.
а если источник объемный (ну допустим, ДхШхВ: 3х6х5,5м) и откуда тогда это расстояние откладывать: от акустического (или геометрического центра) источника шума или от верхнего края???
Смотрю в зеркало... вроде ниче так... красивая... подхожу ближе.. присматриваюсь... ё-моё!!! Богиня!!!
-
ecotwinsong
- Заслуженный эколог
- Сообщения: 412
- Зарегистрирован: 19 ноя 2008, 14:11
- Благодарил (а): 76 раз
- Поблагодарили: 34 раза
Re: Расчет для установки шумозащитного экрана
Подскажите, пожалуйста, как рассчитать экран, в случае когда он расположен по периметру вокруг 2-х источников шума? (здесь, наверное, уже не подходит формула Маекавы)
Смотрю в зеркало... вроде ниче так... красивая... подхожу ближе.. присматриваюсь... ё-моё!!! Богиня!!!
-
serge_vw
- Эколог
- Сообщения: 202
- Зарегистрирован: 18 мар 2007, 15:20
- Откуда: Санкт-Петербург
- Поблагодарили: 10 раз
Re: Расчет для установки шумозащитного экрана
Довольно просто всё считается. Можно от каждого отдельно, потом сложить.
Напишите поконкретнее, подскажем.
Напишите поконкретнее, подскажем.
-
ecotwinsong
- Заслуженный эколог
- Сообщения: 412
- Зарегистрирован: 19 ноя 2008, 14:11
- Благодарил (а): 76 раз
- Поблагодарили: 34 раза
Re: Расчет для установки шумозащитного экрана
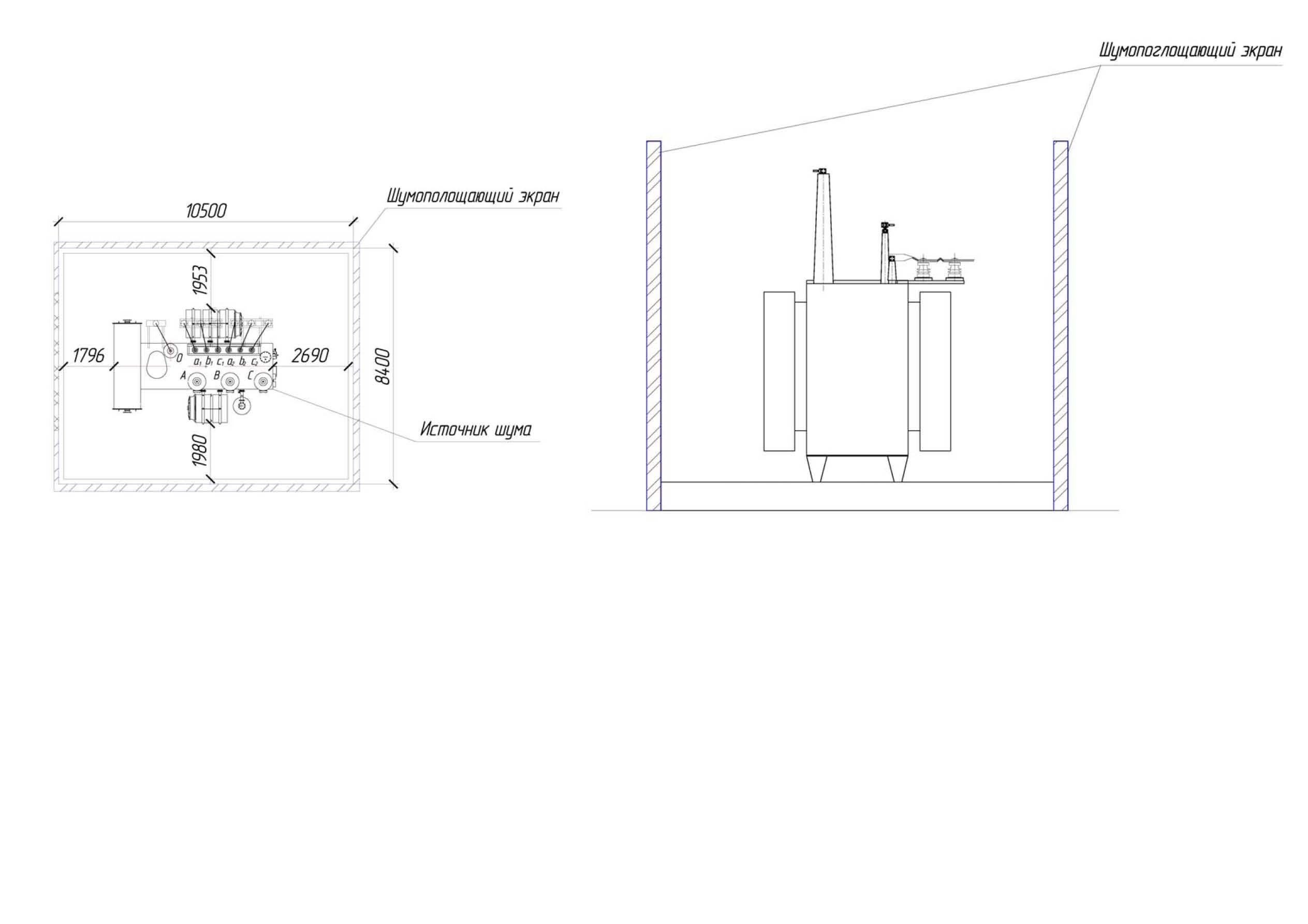
Шумопоглощающий экран (стенка) расположен вокруг источника шума по периметру (с 4-х сторон) - необходимо рассчитать эффективную высоту экрана....
Подскажите, как правильно рассчитать - буду очень признательна!
Подскажите, как правильно рассчитать - буду очень признательна!
Смотрю в зеркало... вроде ниче так... красивая... подхожу ближе.. присматриваюсь... ё-моё!!! Богиня!!!
-
serge_vw
- Эколог
- Сообщения: 202
- Зарегистрирован: 18 мар 2007, 15:20
- Откуда: Санкт-Петербург
- Поблагодарили: 10 раз
Re: Расчет для установки шумозащитного экрана
Ёлки-палки! сколько Вам надо снять этим экраном и на каком расстоянии? Эффективность экрана очень сильно зависит от расстояния до расчетной точки и ее высоты.
В Вашем случае получается, что в первом приближении экран можно считать бесконечным, и делать стандартный расчет от точечного источника или по формуле Маекавы (если звуковое давление в октавах) или по СНиП II-12-77 (если даны дБА). Находите разность длин лучей и вперед.
Напишите мне задачу поподробнее на serge-falcon@mail.ru. Или свою аську, я Вас добавлю.
В Вашем случае получается, что в первом приближении экран можно считать бесконечным, и делать стандартный расчет от точечного источника или по формуле Маекавы (если звуковое давление в октавах) или по СНиП II-12-77 (если даны дБА). Находите разность длин лучей и вперед.
Напишите мне задачу поподробнее на serge-falcon@mail.ru. Или свою аську, я Вас добавлю.
-
ecotwinsong
- Заслуженный эколог
- Сообщения: 412
- Зарегистрирован: 19 ноя 2008, 14:11
- Благодарил (а): 76 раз
- Поблагодарили: 34 раза
Re: Расчет для установки шумозащитного экрана
Не совсем понимаю: в зависимости от расстояния до расчетной точки эффективность будет рассчитываться по разным формулам? Формула Маекавы подходит не для всех случаев?
Смотрю в зеркало... вроде ниче так... красивая... подхожу ближе.. присматриваюсь... ё-моё!!! Богиня!!!
-
tlst
- Эколог
- Сообщения: 192
- Зарегистрирован: 16 янв 2009, 21:44
- Откуда: Санкт-Петербург
- Поблагодарили: 13 раз
Re: Расчет для установки шумозащитного экрана
Доброго времени суток уважаемые коллеги!!!
Если на форуме присутствуют дорожники или может кто сталкивался с подобной ситуацией, то очень прошу помочь. Вопрос в следующем: проектируем очередную дорогу, как всегда в нормативы по шуму не вписываемся, ставим экраны. Так вот по "Методическим рекомендациям по оценке необходимого снижения звука у населенных пунктов и определению требуемой акустической эффективности экранов с учетом звукопоглощения" можно подсчитать необходимую длину экрана для обеспечения найденной ранее акустической эффективности данного экрана по формуле 4.9 при помощи таблицы 4.2. В таблице 4.2 есть значение расстояния от ближайшего бордюра магистрали до расчетной точки, от этого значения зависит длина экрана. В таблице это значение дано от 10м до 140м, так вот вопрос заключается в том, что делать если расчетная точка находится дальше 140м от магистрали?
Если на форуме присутствуют дорожники или может кто сталкивался с подобной ситуацией, то очень прошу помочь. Вопрос в следующем: проектируем очередную дорогу, как всегда в нормативы по шуму не вписываемся, ставим экраны. Так вот по "Методическим рекомендациям по оценке необходимого снижения звука у населенных пунктов и определению требуемой акустической эффективности экранов с учетом звукопоглощения" можно подсчитать необходимую длину экрана для обеспечения найденной ранее акустической эффективности данного экрана по формуле 4.9 при помощи таблицы 4.2. В таблице 4.2 есть значение расстояния от ближайшего бордюра магистрали до расчетной точки, от этого значения зависит длина экрана. В таблице это значение дано от 10м до 140м, так вот вопрос заключается в том, что делать если расчетная точка находится дальше 140м от магистрали?
