Оформление ООС:рамки, приложения и т.п
Модераторы: Ecolog-Julia, seergy, PhILiN
-
smoldАвтор темы
- Заслуженный эколог
- Сообщения: 2083
- Зарегистрирован: 15 авг 2006, 12:24
- Награды: 5
- Откуда: Столица русского Севера!
- Благодарил (а): 267 раз
- Поблагодарили: 1010 раз
- Контактная информация:
Оформление ООС:рамки, приложения и т.п
Коллеги, как правильно оформлять наш раздел по ГОСТу: графическую часть, текстовую часть, приложения? С уважением....
Пахарь, жнец и на дуде игрец, Несущий Благо, Ваш Smold.
"Суперсанпин" может прочитать любой, а понять - не каждый!
"Суперсанпин" может прочитать любой, а понять - не каждый!
-
seergy
- Модератор
- Сообщения: 3305
- Зарегистрирован: 07 фев 2007, 16:14
- Награды: 11
- Откуда: Сургут, ХМАО-Югра
- Благодарил (а): 1190 раз
- Поблагодарили: 1783 раза
Re: Оформление ООС:рамки, приложения и т.п
smold писал(а):Коллеги, как правильно оформлять наш раздел по ГОСТу: графическую часть, текстовую часть, приложения? С уважением....
Спойлер
4.1 Проектная документация
Проектную документацию комплектуют в тома, как правило, по отдельным разделам, установленным [2] (Положение о составе разделов проектной документации и требованиях к их содержанию (утверждено Постановлением Правительства Российской Федерации от 16 февраля 2008 г. № 87))
При большом объеме раздела допускается разделять его на части, а части, в случае необходимости, на книги. Каждую часть и книгу комплектуют отдельно. Всем частям и книгам дают наименования, отражающие содержание частей или книг, и присваивают порядковые номера в пределах, соответственно, раздела или части.
Примечание - Отдельные разделы вместо частей делят на подразделы, установленные [2].
4.1.2 Каждому разделу, части (подразделу) и книге, скомплектованным в том (далее - том), а также каждому текстовому и графическому документу, включенному в том, присваивают самостоятельное обозначение, которое указывают на обложке, титульном листе и/или в основной надписи.
4.1.4 Текстовые и графические материалы, включаемые в том, комплектуют, как правило, в следующем порядке:
- обложка;
- титульный лист;
- содержание тома;
- состав проектной документации;
- текстовая часть;
- графическая часть (основные чертежи и схемы).
4.1.5 Количество листов, включаемых в том, определяют из необходимости обеспечения удобства работы, но не более 300 листов формата А4 по ГОСТ 2.301 или эквивалентного количества листов других форматов.
4.1.7 Текстовые части разделов проектной документации и другие текстовые документы выполняют по ГОСТ 2.105 с учетом требований [2] и 5.1, 5.2 настоящего стандарта.
4.1.8 Разрешается выполнять текстовые части разделов проектной документации без основных надписей, дополнительных граф к ним и рамок. В этом случае в текстовой части:
- на первом листе приводят список исполнителей, в котором в порядке, установленном для титульного листа, указывают должности, инициалы и фамилии лиц, принимавших участие в разработке, контроле и согласовании текстовой части, и предусматривают места для подписей и дат подписания. На втором и, при необходимости, на последующих листах помещают содержание (оглавление), включающее в себя номера (обозначения) и наименования разделов, подразделов и приложений, с указанием номеров листов (страниц);
- в верхней части (верхнем колонтитуле) каждого листа указывают обозначение документа: в левом углу (при односторонней печати) или правом углу четных страниц и левом углу нечетных страниц (при двухсторонней печати);
- в нижней части (нижнем колонтитуле) каждого листа указывают: логотип и наименование организации, подготовившей документ, наименование документа, наименование файла, номер листа (страницы) документа (в нижнем правом углу - при односторонней печати, или в левом углу четных страниц и правом углу нечетных страниц - при двухсторонней печати), а также, при необходимости, номер версии документа и другие сведения. Допускается логотип и наименование организации приводить в верхнем колонтитуле;
- данные об изменениях указывают в соответствии с 7.2.
5.1.2 Документацию, как правило, выполняют автоматизированным способом на бумажном носителе и/или в виде электронного документа.
При выполнении документации в виде электронных документов (ДЭ) и передаче документации на электронных носителях должны соблюдаться требования ГОСТ 2.051. Взаимное соответствие между документами в электронной и бумажной формах обеспечивает разработчик.
5.1.3 При выполнении документации применяют шрифты, используемые средствами вычислительной техники, при обеспечении условий доступности этих шрифтов пользователям документов. При оформлении текстовых частей разделов проектной документации и других документов, содержащих в основном сплошной текст, рекомендуется использовать гарнитуру шрифта Arial или Times New Roman.
5.1.4 При подготовке документации должна быть обеспечена возможность изготовления копий документации надлежащего качества способами репрографии.
5.1.5 Чертежи выполняют в оптимальных масштабах по ГОСТ 2.302 с учетом их сложности и насыщенности информацией.
Масштабы на чертежах не указывают, за исключением чертежей изделий и других случаев, предусмотренных в соответствующих стандартах СПДС.
5.1.6 Содержательная и реквизитная части ДЭ должны соответствовать требованиям стандартов СПДС и ЕСКД.
5.1.7 Структура и состав реквизитов ДЭ должны обеспечивать его обращение в рамках программных средств (отображение, внесение изменений, печать, учет и хранение в базах данных, а также передачу в другие автоматизированные системы) с соблюдением при этом нормативных требований по оформлению документов.
5.2 Основные надписи
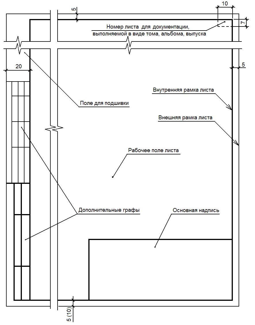
5.2.1 Каждый лист графического и текстового документа, как правило, оформляют основной надписью и дополнительными графами к ней. Формы основных надписей и указания по их заполнению приведены в приложении Ж.
Основную надпись располагают в правом нижнем углу листа.
На листах формата А4 по ГОСТ 2.301 основную надпись располагают вдоль короткой стороны листа.
5.2.2 Содержание, расположение и размеры граф основной надписи, дополнительных граф к ней, а также размеры рамок должны соответствовать:
- на листах основных комплектов рабочих чертежей и листах графической части проектной документации - форме 3;
- на первых листах текстовых документов и эскизных чертежей общих видов нетиповых изделий, оформляемых в виде выпуска, - форме 5;
- на последующих листах чертежей строительных изделий, текстовых документов и эскизных чертежей общих видов - форме 6.
Допускается на первом листе чертежа строительного изделия применять основную надпись по форме 5.
Если некоторые документы (спецификацию оборудования, изделий и материалов, эскизные чертежи общих видов нетиповых изделий) выпускают без титульного листа, то в этом случае первый лист документа оформляют основной надписью по форме 3, последующие - по форме 6.
5.2.4 Основную надпись, дополнительные графы к ней и рамки выполняют сплошными толстыми основными и сплошными тонкими линиями по ГОСТ 2.303.
5.2.6 Расположение основной надписи и дополнительных граф к ней, а также размерных рамок на листах приведены на рисунке И.1 (приложение И).
Проектную документацию комплектуют в тома, как правило, по отдельным разделам, установленным [2] (Положение о составе разделов проектной документации и требованиях к их содержанию (утверждено Постановлением Правительства Российской Федерации от 16 февраля 2008 г. № 87))
При большом объеме раздела допускается разделять его на части, а части, в случае необходимости, на книги. Каждую часть и книгу комплектуют отдельно. Всем частям и книгам дают наименования, отражающие содержание частей или книг, и присваивают порядковые номера в пределах, соответственно, раздела или части.
Примечание - Отдельные разделы вместо частей делят на подразделы, установленные [2].
4.1.2 Каждому разделу, части (подразделу) и книге, скомплектованным в том (далее - том), а также каждому текстовому и графическому документу, включенному в том, присваивают самостоятельное обозначение, которое указывают на обложке, титульном листе и/или в основной надписи.
4.1.4 Текстовые и графические материалы, включаемые в том, комплектуют, как правило, в следующем порядке:
- обложка;
- титульный лист;
- содержание тома;
- состав проектной документации;
- текстовая часть;
- графическая часть (основные чертежи и схемы).
4.1.5 Количество листов, включаемых в том, определяют из необходимости обеспечения удобства работы, но не более 300 листов формата А4 по ГОСТ 2.301 или эквивалентного количества листов других форматов.
4.1.7 Текстовые части разделов проектной документации и другие текстовые документы выполняют по ГОСТ 2.105 с учетом требований [2] и 5.1, 5.2 настоящего стандарта.
4.1.8 Разрешается выполнять текстовые части разделов проектной документации без основных надписей, дополнительных граф к ним и рамок. В этом случае в текстовой части:
- на первом листе приводят список исполнителей, в котором в порядке, установленном для титульного листа, указывают должности, инициалы и фамилии лиц, принимавших участие в разработке, контроле и согласовании текстовой части, и предусматривают места для подписей и дат подписания. На втором и, при необходимости, на последующих листах помещают содержание (оглавление), включающее в себя номера (обозначения) и наименования разделов, подразделов и приложений, с указанием номеров листов (страниц);
- в верхней части (верхнем колонтитуле) каждого листа указывают обозначение документа: в левом углу (при односторонней печати) или правом углу четных страниц и левом углу нечетных страниц (при двухсторонней печати);
- в нижней части (нижнем колонтитуле) каждого листа указывают: логотип и наименование организации, подготовившей документ, наименование документа, наименование файла, номер листа (страницы) документа (в нижнем правом углу - при односторонней печати, или в левом углу четных страниц и правом углу нечетных страниц - при двухсторонней печати), а также, при необходимости, номер версии документа и другие сведения. Допускается логотип и наименование организации приводить в верхнем колонтитуле;
- данные об изменениях указывают в соответствии с 7.2.
5.1.2 Документацию, как правило, выполняют автоматизированным способом на бумажном носителе и/или в виде электронного документа.
При выполнении документации в виде электронных документов (ДЭ) и передаче документации на электронных носителях должны соблюдаться требования ГОСТ 2.051. Взаимное соответствие между документами в электронной и бумажной формах обеспечивает разработчик.
5.1.3 При выполнении документации применяют шрифты, используемые средствами вычислительной техники, при обеспечении условий доступности этих шрифтов пользователям документов. При оформлении текстовых частей разделов проектной документации и других документов, содержащих в основном сплошной текст, рекомендуется использовать гарнитуру шрифта Arial или Times New Roman.
5.1.4 При подготовке документации должна быть обеспечена возможность изготовления копий документации надлежащего качества способами репрографии.
5.1.5 Чертежи выполняют в оптимальных масштабах по ГОСТ 2.302 с учетом их сложности и насыщенности информацией.
Масштабы на чертежах не указывают, за исключением чертежей изделий и других случаев, предусмотренных в соответствующих стандартах СПДС.
5.1.6 Содержательная и реквизитная части ДЭ должны соответствовать требованиям стандартов СПДС и ЕСКД.
5.1.7 Структура и состав реквизитов ДЭ должны обеспечивать его обращение в рамках программных средств (отображение, внесение изменений, печать, учет и хранение в базах данных, а также передачу в другие автоматизированные системы) с соблюдением при этом нормативных требований по оформлению документов.
5.2 Основные надписи
5.2.1 Каждый лист графического и текстового документа, как правило, оформляют основной надписью и дополнительными графами к ней. Формы основных надписей и указания по их заполнению приведены в приложении Ж.
Основную надпись располагают в правом нижнем углу листа.
На листах формата А4 по ГОСТ 2.301 основную надпись располагают вдоль короткой стороны листа.
5.2.2 Содержание, расположение и размеры граф основной надписи, дополнительных граф к ней, а также размеры рамок должны соответствовать:
- на листах основных комплектов рабочих чертежей и листах графической части проектной документации - форме 3;
- на первых листах текстовых документов и эскизных чертежей общих видов нетиповых изделий, оформляемых в виде выпуска, - форме 5;
- на последующих листах чертежей строительных изделий, текстовых документов и эскизных чертежей общих видов - форме 6.
Допускается на первом листе чертежа строительного изделия применять основную надпись по форме 5.
Если некоторые документы (спецификацию оборудования, изделий и материалов, эскизные чертежи общих видов нетиповых изделий) выпускают без титульного листа, то в этом случае первый лист документа оформляют основной надписью по форме 3, последующие - по форме 6.
5.2.4 Основную надпись, дополнительные графы к ней и рамки выполняют сплошными толстыми основными и сплошными тонкими линиями по ГОСТ 2.303.
5.2.6 Расположение основной надписи и дополнительных граф к ней, а также размерных рамок на листах приведены на рисунке И.1 (приложение И).
Спойлер
Примечание - Для графических документов по инженерным изысканиям запись «Н.контр.» («Нормоконтроль») в основной надписи допускается не приводить.
Спойлер
Примечание - Основную надпись по форме 5 допускается использовать для графических документов по инженерным изысканиям, не используемых в качестве графической основы.
Спойлер
Примечание - Основную надпись по форме 6 допускается использовать для графических документов по инженерным изысканиям, не используемых в качестве графической основы, а также для последующих листов кабельных и кабельно-трубных журналов при выпуске соответствующих основных комплектов отдельными документами.
Спойлер
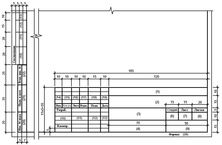
- в графе 1 - обозначение документа, в том числе раздела, подраздела проектной документации, основного комплекта рабочих чертежей, чертежа изделия, текстового документа и др.;
- в графе 2 - наименование предприятия, жилищно-гражданского комплекса или другого объекта строительства, в состав которого входит здание (сооружение) или наименование микрорайона;
- в графе 3 - наименование здания (сооружения) и, при необходимости, вид строительства (реконструкция, расширение, техническое перевооружение, капитальный ремонт);
- в графе 4 - наименование изображений, помещенных на данном листе, в точном соответствии с их наименованием на чертеже;
Наименования спецификаций и других таблиц, а также текстовых указаний, относящихся к изображениям, в графе не указывают;
- в графе 5 - наименование изделия и/или наименование документа;
- в графе 6 - условное обозначение вида документации: П - для проектной документации, Р - для рабочей документации.
Для других видов документации графу не заполняют;
- в графе 7 - порядковый номер листа текстового документа. На документах, состоящих из одного листа, графу не заполняют;
- в графе 8 - общее количество листов документа. Графу заполняют только на первом листе;
- в графе 9 - наименование или различительный индекс организации, разработавшей документ;
- в графе 10 - характер работы, выполняемой лицом, подписывающим документ, в соответствии с формами 3-5.
В свободных строках по усмотрению проектной организации приводят должности специалистов и руководителей, ответственных за разработку и проверку документа, и запись «Проверил».
Подписи лица, разработавшего данный документ, и нормоконтролера являются обязательными.
Подписи главного инженера (архитектора) проекта являются обязательными на листах общих данных по рабочим чертежам, наиболее значимых листах рабочих чертежей, графической части проектной и отчетной изыскательской документации;
- в графах 11-13 - фамилии и подписи лиц, указанных в графе 10, и дату подписания.
Подписи других должностных лиц и согласующие подписи размещают на поле для подшивки листа;
- в графах 14-19 - сведения об изменениях, которые заполняют в соответствии с 7.1.3.21;
- в графе 20 - инвентарный номер подлинника;
- в графе 21 - подпись лица, принявшего подлинник на хранение, и дату приемки;
- в графе 22 - инвентарный номер подлинника документа, взамен которого выпущен новый подлинник;
- в графе 23 - обозначение материала детали (графу заполняют только на чертежах деталей);
- в графе 24 - массу изделия, изображенного на чертеже, в килограммах, без указания единицы массы. Массу изделия в других единицах массы приводят с указанием единицы массы.
Пример - 2,4 т;
- в графе 25 - масштаб (проставляют в соответствии с ГОСТ 2.302);
- в графе 26 - обозначение формата листа по ГОСТ 2.301. Для электронного документа указывают формат листа, на котором изображение будет соответствовать установленному масштабу.
Примечание - В графах 19, 21 при указании календарной даты на бумажном носителе год указывают двумя последними цифрами.
- в графе 2 - наименование предприятия, жилищно-гражданского комплекса или другого объекта строительства, в состав которого входит здание (сооружение) или наименование микрорайона;
- в графе 3 - наименование здания (сооружения) и, при необходимости, вид строительства (реконструкция, расширение, техническое перевооружение, капитальный ремонт);
- в графе 4 - наименование изображений, помещенных на данном листе, в точном соответствии с их наименованием на чертеже;
Наименования спецификаций и других таблиц, а также текстовых указаний, относящихся к изображениям, в графе не указывают;
- в графе 5 - наименование изделия и/или наименование документа;
- в графе 6 - условное обозначение вида документации: П - для проектной документации, Р - для рабочей документации.
Для других видов документации графу не заполняют;
- в графе 7 - порядковый номер листа текстового документа. На документах, состоящих из одного листа, графу не заполняют;
- в графе 8 - общее количество листов документа. Графу заполняют только на первом листе;
- в графе 9 - наименование или различительный индекс организации, разработавшей документ;
- в графе 10 - характер работы, выполняемой лицом, подписывающим документ, в соответствии с формами 3-5.
В свободных строках по усмотрению проектной организации приводят должности специалистов и руководителей, ответственных за разработку и проверку документа, и запись «Проверил».
Подписи лица, разработавшего данный документ, и нормоконтролера являются обязательными.
Подписи главного инженера (архитектора) проекта являются обязательными на листах общих данных по рабочим чертежам, наиболее значимых листах рабочих чертежей, графической части проектной и отчетной изыскательской документации;
- в графах 11-13 - фамилии и подписи лиц, указанных в графе 10, и дату подписания.
Подписи других должностных лиц и согласующие подписи размещают на поле для подшивки листа;
- в графах 14-19 - сведения об изменениях, которые заполняют в соответствии с 7.1.3.21;
- в графе 20 - инвентарный номер подлинника;
- в графе 21 - подпись лица, принявшего подлинник на хранение, и дату приемки;
- в графе 22 - инвентарный номер подлинника документа, взамен которого выпущен новый подлинник;
- в графе 23 - обозначение материала детали (графу заполняют только на чертежах деталей);
- в графе 24 - массу изделия, изображенного на чертеже, в килограммах, без указания единицы массы. Массу изделия в других единицах массы приводят с указанием единицы массы.
Пример - 2,4 т;
- в графе 25 - масштаб (проставляют в соответствии с ГОСТ 2.302);
- в графе 26 - обозначение формата листа по ГОСТ 2.301. Для электронного документа указывают формат листа, на котором изображение будет соответствовать установленному масштабу.
Примечание - В графах 19, 21 при указании календарной даты на бумажном носителе год указывают двумя последними цифрами.
Спойлер
Если хотите выразить кому-то благодарность и/или почтение, то нажмите кнопку "Поблагодарить за сообщение автора"
-
smoldАвтор темы
- Заслуженный эколог
- Сообщения: 2083
- Зарегистрирован: 15 авг 2006, 12:24
- Награды: 5
- Откуда: Столица русского Севера!
- Благодарил (а): 267 раз
- Поблагодарили: 1010 раз
- Контактная информация:
Re: Оформление ООС:рамки, приложения и т.п
согласно п.4.1.8 "ГОСТ Р 21.1101-2009 Система проектной документации для строительства..." теперь делаю без рамок (много занимают времени), в верхнем колонтитуле "Название объекта", в нижнем "шифр и название организации". Нормоконтроль рад я счастлив.
Пахарь, жнец и на дуде игрец, Несущий Благо, Ваш Smold.
"Суперсанпин" может прочитать любой, а понять - не каждый!
"Суперсанпин" может прочитать любой, а понять - не каждый!
-
seergy
- Модератор
- Сообщения: 3305
- Зарегистрирован: 07 фев 2007, 16:14
- Награды: 11
- Откуда: Сургут, ХМАО-Югра
- Благодарил (а): 1190 раз
- Поблагодарили: 1783 раза
Re: Оформление ООС: рамки, приложения и т.п
Вообще-то, такие вещи нормоконтролёр знать должен был.smold писал(а):согласно п.4.1.8 "ГОСТ Р 21.1101-2009 Система проектной документации для строительства..." теперь делаю без рамок (много занимают времени), в верхнем колонтитуле "Название объекта", в нижнем "шифр и название организации". Нормоконтроль рад я счастлив.
Насчёт оформления без рамок - может получиться, что у вас раздел без основной надписи, а у других раздел с рамками и штампами основной надписи, тогда будет смотреться не очень. т.е. у организации должна быть единая система оформления документации.
Да и как-то серьёзней смотрится со штампами раздел - выполнял человек постоянно работающий в проектировании
Спойлер
текст ГОСТ
8 Правила оформления сброшюрованной документации
8.1 Копии текстовых и графических материалов проектной документации, а также отчетной технической документации по инженерным изысканиям брошюруют в тома, сложенными на формат А4 по ГОСТ 2.301.
Примечание - Под брошюровкой понимается размещение материалов проектной документации в переплетах или твердых папках с легкоразъемными креплениями (замками).
8.2 Копии документов рабочей документации для передачи заказчику комплектуют в папки полистно, сложенными на формат А4, как правило, отдельно по основным комплектам рабочих чертежей.
Допускается брошюровать копии рабочих документов в тома в соответствии с 8.1 или в альбомы, сложенными на формат А3.
Количество листов, включаемых в папку или альбом, должно соответствовать 4.1.5 ( не более 300 листов формата А4 по ГОСТ 2.301 или эквивалентного количества листов других форматов).
8.3 Каждый документ, том или альбом, предназначенный для брошюровки, а также папку со сложенными в нее документами, оформляют обложкой по форме 12, приведенной в приложении Н (с учетом особенностей заполнения формы для обложки). Обложку не нумеруют и не включают в общее количество листов.
8.4 Первым листом сброшюрованного документа или тома, состоящего из нескольких документов, а также альбома или папки с рабочей документацией, является титульный лист. Титульный лист выполняют по форме 12 приложения Н. Примеры выполнения титульных листов приведены на рисунках П.1 и П.2 (приложение П).
В томе проектной документации, состоящем из нескольких самостоятельных документов, включая текстовую часть, титульный лист к текстовой части не выполняют.
8.5 Все листы сброшюрованного документа нумеруют сквозной нумерацией листов, начиная с титульного листа *. При этом титульный лист не нумеруют.
Номер листа на листах текстовых и графических документов указывают в правом верхнем углу рабочего поля листа (см. приложение И). Кроме того, текстовые и графические документы, включенные в том (альбом) и имеющие самостоятельное обозначение, должны иметь порядковую нумерацию листов в пределах документа с одним обозначением (в основной надписи или в соответствии с 4.1.8).
* Требования 8.5 являются обязательными только для документации, подлежащей государственной экспертизе.
8.6 При комплектовании нескольких документов в виде тома, альбома, а также в папку, после титульного листа приводят содержание тома (альбома, папки), которое является перечнем документов, входящих в том (альбом, папку). Содержание выполняют на листах формата А4 по форме 2 приложения Г.
Документы в содержании записывают в последовательности их комплектования в том, альбом или папку.
Обложку и титульный лист в содержание не записывают.
Первый лист содержания тома (альбома, папки) оформляют основной надписью по форме 5 приложения Ж, последующие - по форме 6 приложения Ж.
Содержанию присваивают обозначение, состоящее из обозначения тома (альбома, папки) и шифра «С».
Пример - 2345-ПЗУ2С; 2345-11-КЖ.ИС; 2345-11-ОВ.ОЛС, 2345-11-ТХ.НС
В графе 5 основной надписи указывают «Содержание тома» или, соответственно, «Содержание альбома» и «Содержание папки» и далее - номер соответствующего тома, альбома или папки (при наличии).
8.7 Титульные листы томов проектной документации оформляют подписями:
- руководителя или главного инженера организации;
- главного инженера (архитектора) проекта.
Титульный лист технического отчета по инженерным изысканиям дополнительно заверяют печатью организации - исполнителя инженерных изысканий.
Титульные листы рабочих документов оформляют подписью ответственного лица - главного инженера (архитектора) проекта.
8.8 Состав проектной документации согласно 4.1.2, а также состав отчетной технической документации по инженерным изысканиям приводят в ведомости, выполняемой по форме 13 приложения Р на листах формата А4.
В ведомости приводят последовательный перечень томов проектной или отчетной технической документации по инженерным изысканиям.
Первый лист ведомости оформляют основной надписью по форме 5 приложения Ж, последующие - по форме 6 приложения Ж.
Составу проектной документации присваивают обозначение, состоящее из базового обозначения проектной документации и через дефис шифра «СП».
Пример - 2345-СП
Составу отчетной технической документации по инженерным изысканиям присваивают обозначение, состоящее из базового обозначения документации и через дефис шифра «СД».
Пример - 2344-СД
8 Правила оформления сброшюрованной документации
8.1 Копии текстовых и графических материалов проектной документации, а также отчетной технической документации по инженерным изысканиям брошюруют в тома, сложенными на формат А4 по ГОСТ 2.301.
Примечание - Под брошюровкой понимается размещение материалов проектной документации в переплетах или твердых папках с легкоразъемными креплениями (замками).
8.2 Копии документов рабочей документации для передачи заказчику комплектуют в папки полистно, сложенными на формат А4, как правило, отдельно по основным комплектам рабочих чертежей.
Допускается брошюровать копии рабочих документов в тома в соответствии с 8.1 или в альбомы, сложенными на формат А3.
Количество листов, включаемых в папку или альбом, должно соответствовать 4.1.5 ( не более 300 листов формата А4 по ГОСТ 2.301 или эквивалентного количества листов других форматов).
8.3 Каждый документ, том или альбом, предназначенный для брошюровки, а также папку со сложенными в нее документами, оформляют обложкой по форме 12, приведенной в приложении Н (с учетом особенностей заполнения формы для обложки). Обложку не нумеруют и не включают в общее количество листов.
8.4 Первым листом сброшюрованного документа или тома, состоящего из нескольких документов, а также альбома или папки с рабочей документацией, является титульный лист. Титульный лист выполняют по форме 12 приложения Н. Примеры выполнения титульных листов приведены на рисунках П.1 и П.2 (приложение П).
В томе проектной документации, состоящем из нескольких самостоятельных документов, включая текстовую часть, титульный лист к текстовой части не выполняют.
8.5 Все листы сброшюрованного документа нумеруют сквозной нумерацией листов, начиная с титульного листа *. При этом титульный лист не нумеруют.
Номер листа на листах текстовых и графических документов указывают в правом верхнем углу рабочего поля листа (см. приложение И). Кроме того, текстовые и графические документы, включенные в том (альбом) и имеющие самостоятельное обозначение, должны иметь порядковую нумерацию листов в пределах документа с одним обозначением (в основной надписи или в соответствии с 4.1.8).
* Требования 8.5 являются обязательными только для документации, подлежащей государственной экспертизе.
8.6 При комплектовании нескольких документов в виде тома, альбома, а также в папку, после титульного листа приводят содержание тома (альбома, папки), которое является перечнем документов, входящих в том (альбом, папку). Содержание выполняют на листах формата А4 по форме 2 приложения Г.
Документы в содержании записывают в последовательности их комплектования в том, альбом или папку.
Обложку и титульный лист в содержание не записывают.
Первый лист содержания тома (альбома, папки) оформляют основной надписью по форме 5 приложения Ж, последующие - по форме 6 приложения Ж.
Содержанию присваивают обозначение, состоящее из обозначения тома (альбома, папки) и шифра «С».
Пример - 2345-ПЗУ2С; 2345-11-КЖ.ИС; 2345-11-ОВ.ОЛС, 2345-11-ТХ.НС
В графе 5 основной надписи указывают «Содержание тома» или, соответственно, «Содержание альбома» и «Содержание папки» и далее - номер соответствующего тома, альбома или папки (при наличии).
8.7 Титульные листы томов проектной документации оформляют подписями:
- руководителя или главного инженера организации;
- главного инженера (архитектора) проекта.
Титульный лист технического отчета по инженерным изысканиям дополнительно заверяют печатью организации - исполнителя инженерных изысканий.
Титульные листы рабочих документов оформляют подписью ответственного лица - главного инженера (архитектора) проекта.
8.8 Состав проектной документации согласно 4.1.2, а также состав отчетной технической документации по инженерным изысканиям приводят в ведомости, выполняемой по форме 13 приложения Р на листах формата А4.
В ведомости приводят последовательный перечень томов проектной или отчетной технической документации по инженерным изысканиям.
Первый лист ведомости оформляют основной надписью по форме 5 приложения Ж, последующие - по форме 6 приложения Ж.
Составу проектной документации присваивают обозначение, состоящее из базового обозначения проектной документации и через дефис шифра «СП».
Пример - 2345-СП
Составу отчетной технической документации по инженерным изысканиям присваивают обозначение, состоящее из базового обозначения документации и через дефис шифра «СД».
Пример - 2344-СД
Спойлер
Примечание - Размеры титульного листа и обложки принимают в зависимости от формата тома, папки или альбома, к которым они выполняются.
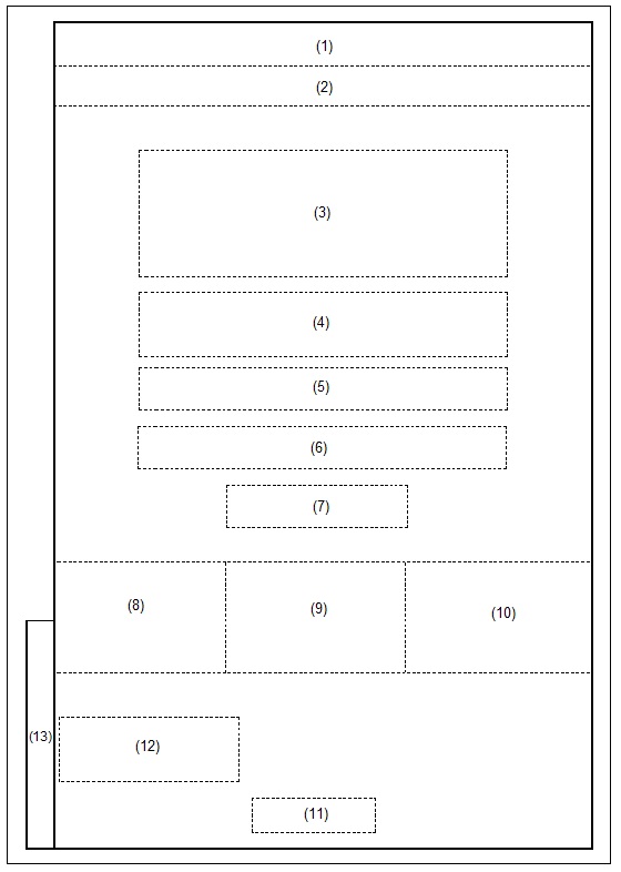
Н.1 На титульном листе приводят следующие реквизиты:
- поле 1 - сокращенное, а при его отсутствии - полное наименование вышестоящей организации (при ее наличии; указывают, как правило, для государственных организаций);
- поле 2 - логотип (не обязательно), полное наименование организации, подготовившей документ;
- поле 3 - наименование объекта капитального строительства и, при необходимости, вид строительства.
Наименование объекта строительства на титульном листе должно соответствовать сведениям, приводимым в графах 2 и 3 основной надписи (см. приложение Ж);
- поле 4 - вид документации;
- поле 5 - наименование документа;
- поле 6 - обозначение документа;
- поле 7 - номер тома, части, книги (при наличии);
- поле 8 - должности лиц, ответственных за разработку документа;
- поле 9 - подписи лиц, указанных на поле 8, и даты подписания, выполняемые согласно ГОСТ Р 6.30.
Для отчетной изыскательской документации на этом поле проставляют заверяющую печать организации - исполнителя инженерных изысканий;
- поле 10 - инициалы и фамилии лиц, указанных на поле 8;
- поле 11 - год выпуска документа;
- поле 12 - для размещения таблицы внесения изменений по форме 10 приложения М;
- поле 13 - для дополнительных граф основной надписи в соответствии с приложением Ж.
Н.2 На обложке приводят следующие реквизиты:
- поля 1-7, 11, 12 - приводят реквизиты, аналогичные реквизитам титульного листа.
- поля 8-10 - для обложки не заполняют;
- поле 13 - не выполняют
Н.1 На титульном листе приводят следующие реквизиты:
- поле 1 - сокращенное, а при его отсутствии - полное наименование вышестоящей организации (при ее наличии; указывают, как правило, для государственных организаций);
- поле 2 - логотип (не обязательно), полное наименование организации, подготовившей документ;
- поле 3 - наименование объекта капитального строительства и, при необходимости, вид строительства.
Наименование объекта строительства на титульном листе должно соответствовать сведениям, приводимым в графах 2 и 3 основной надписи (см. приложение Ж);
- поле 4 - вид документации;
- поле 5 - наименование документа;
- поле 6 - обозначение документа;
- поле 7 - номер тома, части, книги (при наличии);
- поле 8 - должности лиц, ответственных за разработку документа;
- поле 9 - подписи лиц, указанных на поле 8, и даты подписания, выполняемые согласно ГОСТ Р 6.30.
Для отчетной изыскательской документации на этом поле проставляют заверяющую печать организации - исполнителя инженерных изысканий;
- поле 10 - инициалы и фамилии лиц, указанных на поле 8;
- поле 11 - год выпуска документа;
- поле 12 - для размещения таблицы внесения изменений по форме 10 приложения М;
- поле 13 - для дополнительных граф основной надписи в соответствии с приложением Ж.
Н.2 На обложке приводят следующие реквизиты:
- поля 1-7, 11, 12 - приводят реквизиты, аналогичные реквизитам титульного листа.
- поля 8-10 - для обложки не заполняют;
- поле 13 - не выполняют
Спойлер
Рисунок П.1 - Пример выполнения титульного листа тома проектной документации
* Приведенные примеры являются условными
Спойлер
Г.6 В содержании тома указывают:
- в графе «Обозначение» - обозначение документа;
- в графе «Наименование» - наименование документа в точном соответствии с наименованием, указанным в основной надписи или на титульном листе;
- в графе «Примечание» - номер листа тома по сквозной нумерации листов тома в соответствии с 8.4, с которого начинается документ, а также, при необходимости, сведения об изменениях, вносимых в записанные документы.
- в графе «Обозначение» - обозначение документа;
- в графе «Наименование» - наименование документа в точном соответствии с наименованием, указанным в основной надписи или на титульном листе;
- в графе «Примечание» - номер листа тома по сквозной нумерации листов тома в соответствии с 8.4, с которого начинается документ, а также, при необходимости, сведения об изменениях, вносимых в записанные документы.
Спойлер
В отчетной документации указывают:
- в графе «Номер тома» - порядковый номер тома или номер тома, включающий номер раздела и, при наличии, номер части, книги (см. 4.1.1, 4.1.3), разделенных точками.
Пример - 1, 2.1, 2.2, 5.5.1, 5.5.2;
- в графе «Обозначение» - обозначение документа, указанное на титульном листе, и, при необходимости, наименование или различительный индекс организации, выпустившей документ;
- в графе «Наименование» - наименование документа в точном соответствии с наименованием, указанным на титульным листе;
- в графе «Примечание» - дополнительные сведения, в том числе о внесенных изменениях.
- в графе «Номер тома» - порядковый номер тома или номер тома, включающий номер раздела и, при наличии, номер части, книги (см. 4.1.1, 4.1.3), разделенных точками.
Пример - 1, 2.1, 2.2, 5.5.1, 5.5.2;
- в графе «Обозначение» - обозначение документа, указанное на титульном листе, и, при необходимости, наименование или различительный индекс организации, выпустившей документ;
- в графе «Наименование» - наименование документа в точном соответствии с наименованием, указанным на титульным листе;
- в графе «Примечание» - дополнительные сведения, в том числе о внесенных изменениях.
Если хотите выразить кому-то благодарность и/или почтение, то нажмите кнопку "Поблагодарить за сообщение автора"
-
smoldАвтор темы
- Заслуженный эколог
- Сообщения: 2083
- Зарегистрирован: 15 авг 2006, 12:24
- Награды: 5
- Откуда: Столица русского Севера!
- Благодарил (а): 267 раз
- Поблагодарили: 1010 раз
- Контактная информация:
Re: Оформление ООС:рамки, приложения и т.п
seergy, дело в том, что "нормоконтроль" был на учебе там сказали, что текстовые документы можно без рамок, но с колонтитулами....я рад, что меньше мороки с колонтитулами и все согласно "ГОСТ Р 21.1101-2009 Система проектной документации для строительства. Основные требования к проектной и рабочей документации". А как это будет смотреться мне ФИОЛЕТОВО. Как то так....
Пахарь, жнец и на дуде игрец, Несущий Благо, Ваш Smold.
"Суперсанпин" может прочитать любой, а понять - не каждый!
"Суперсанпин" может прочитать любой, а понять - не каждый!
-
seergy
- Модератор
- Сообщения: 3305
- Зарегистрирован: 07 фев 2007, 16:14
- Награды: 11
- Откуда: Сургут, ХМАО-Югра
- Благодарил (а): 1190 раз
- Поблагодарили: 1783 раза
Re: Оформление ООС:рамки, приложения и т.п
Кому-как удобно - ГОСТ допускает. Сам пользуюсь рамками и мне не трудно с ними работать. Считаю, что как бы более серьёзней смотрится.smold писал(а):seergy, дело в том, что "нормоконтроль" был на учебе там сказали, что текстовые документы можно без рамок, но с колонтитулами....я рад, что меньше мороки с колонтитулами и все согласно "ГОСТ Р 21.1101-2009 Система проектной документации для строительства. Основные требования к проектной и рабочей документации". А как это будет смотреться мне ФИОЛЕТОВО. Как то так....
Если хотите выразить кому-то благодарность и/или почтение, то нажмите кнопку "Поблагодарить за сообщение автора"
-
smoldАвтор темы
- Заслуженный эколог
- Сообщения: 2083
- Зарегистрирован: 15 авг 2006, 12:24
- Награды: 5
- Откуда: Столица русского Севера!
- Благодарил (а): 267 раз
- Поблагодарили: 1010 раз
- Контактная информация:
Re: Оформление ООС:рамки, приложения и т.п
Не отрицаю что по серьезней, главное всетаки содержание [!icon_wink]seergy писал(а): Сам пользуюсь рамками и мне не трудно с ними работать. Считаю, что как бы более серьёзней смотрится.
Пахарь, жнец и на дуде игрец, Несущий Благо, Ваш Smold.
"Суперсанпин" может прочитать любой, а понять - не каждый!
"Суперсанпин" может прочитать любой, а понять - не каждый!
-
seergy
- Модератор
- Сообщения: 3305
- Зарегистрирован: 07 фев 2007, 16:14
- Награды: 11
- Откуда: Сургут, ХМАО-Югра
- Благодарил (а): 1190 раз
- Поблагодарили: 1783 раза
Re: Оформление ООС:рамки, приложения и т.п
Если обратили внимание, то допускается выполнить текстовую часть без основных надписей.smold писал(а):Не отрицаю что по серьезней, главное всетаки содержание [!icon_wink]seergy писал(а): Сам пользуюсь рамками и мне не трудно с ними работать. Считаю, что как бы более серьёзней смотрится.
Остальное должно оформляться по ГОСТ:
- обложка;
- титульный лист;
- содержание тома;
- состав проектной документации;
- графическая часть (основные чертежи и схемы)
Если хотите выразить кому-то благодарность и/или почтение, то нажмите кнопку "Поблагодарить за сообщение автора"
-
seergy
- Модератор
- Сообщения: 3305
- Зарегистрирован: 07 фев 2007, 16:14
- Награды: 11
- Откуда: Сургут, ХМАО-Югра
- Благодарил (а): 1190 раз
- Поблагодарили: 1783 раза
Re: Оформление ООС:рамки, приложения и т.п
К текстовым документам относятся:
Оформление текстовых частей
ГОСТ 2.105-95* ЕСКД. Общие требования к текстовым документам. Выдержки (подробнее см. ГОСТ):
Спойлер
1 ОБЛАСТЬ ПРИМЕНЕНИЯ
- спецификация;
- ведомость спецификаций (ВС);
- ведомость ссылочных документов (ВД);
- ведомость покупных изделий (ВП);
- ведомость разрешения применения покупных изделий (ВИ);
- ведомость держателей подлинников (ДП);
- ведомость технического предложения (ПТ);
- ведомость эскизного проекта (ЭП);
- ведомость технического проекта (ТП);
- ведомость документов в электронной форме (ВДЭ);
- таблицы (ТБ).
Документы, содержащие в основном сплошной текст:
- пояснительная записка (ПЗ);
- программа и методика испытаний (ПМ);
- расчет (РР);
- инструкция (И);
- документы прочие (Д).
Примечания
1 Текстовые электронные документы в содержательной части должны иметь все данные, необходимые для их вывода на средства отображения информации или на бумажный носитель в соответствии с требованиями настоящего стандарта.
2 Выполнение текстовых документов - по ГОСТ 2.105.
- спецификация;
- ведомость спецификаций (ВС);
- ведомость ссылочных документов (ВД);
- ведомость покупных изделий (ВП);
- ведомость разрешения применения покупных изделий (ВИ);
- ведомость держателей подлинников (ДП);
- ведомость технического предложения (ПТ);
- ведомость эскизного проекта (ЭП);
- ведомость технического проекта (ТП);
- ведомость документов в электронной форме (ВДЭ);
- таблицы (ТБ).
Документы, содержащие в основном сплошной текст:
- пояснительная записка (ПЗ);
- программа и методика испытаний (ПМ);
- расчет (РР);
- инструкция (И);
- документы прочие (Д).
Примечания
1 Текстовые электронные документы в содержательной части должны иметь все данные, необходимые для их вывода на средства отображения информации или на бумажный носитель в соответствии с требованиями настоящего стандарта.
2 Выполнение текстовых документов - по ГОСТ 2.105.
ГОСТ 2.105-95* ЕСКД. Общие требования к текстовым документам. Выдержки (подробнее см. ГОСТ):
Спойлер
3.1 Текстовые документы подразделяют на документы, содержащие, в основном, сплошной текст (технические условия, паспорта, расчеты, пояснительные записки, инструкции и т.п.), и документы, содержащие текст, разбитый на графы (спецификации, ведомости, таблицы и т.п.).
Текстовые документы выполняют в бумажной форме и (или) в виде электронного документа (ДЭ)
3.2 Текстовые документы выполняют на формах, установленных соответствующими стандартами Единой системы конструкторской документации (ЕСКД) и Системы проектной документации для строительства (СПДС).
Требования, специфические для некоторых видов текстовых документов (например эксплуатационных документов), приведены в соответствующих стандартах.(например, п.4.1.8 "ГОСТ Р 21.1101-2009)
3.6 Расстояние от рамки формы до границ текста в начале и в конце строк - не менее 3 мм.
Расстояние от верхней или нижней строки текста до верхней или нижней рамки должно быть не менее 10 мм.
Абзацы в тексте начинают отступом, равным пяти ударам пишущей машинки (15 - 17 мм).
Пример выполнения текстового документа приведен в приложении А.
Текстовые документы выполняют в бумажной форме и (или) в виде электронного документа (ДЭ)
3.2 Текстовые документы выполняют на формах, установленных соответствующими стандартами Единой системы конструкторской документации (ЕСКД) и Системы проектной документации для строительства (СПДС).
Требования, специфические для некоторых видов текстовых документов (например эксплуатационных документов), приведены в соответствующих стандартах.(например, п.4.1.8 "ГОСТ Р 21.1101-2009)
3.6 Расстояние от рамки формы до границ текста в начале и в конце строк - не менее 3 мм.
Расстояние от верхней или нижней строки текста до верхней или нижней рамки должно быть не менее 10 мм.
Абзацы в тексте начинают отступом, равным пяти ударам пишущей машинки (15 - 17 мм).
Пример выполнения текстового документа приведен в приложении А.
Спойлер
* изменил на ГОСТ 21.1101-2009 вместо ГОСТ 2.104-68 (как указано в ГОСТ 2.105-95* ЕСКД. Общие требования к текстовым документам), чтобы было более понятно)
Спойлер
4.1.1 Текст документа при необходимости разделяют на разделы и подразделы.
При большом объеме документа допускается разделять его на части, а части, в случае необходимости, на книги. Каждую часть и книгу комплектуют отдельно. Всем частям дают наименования и присваивают обозначение документа. Начиная со второй части, к этому обозначению добавляют порядковый номер, например: ХХХХ.331112.032Ф0, ХХХХ.331112.032Ф01, ХХХХ.331112.032Ф02, и т.д. Всем книгам дают наименование и присваивают порядковый номер. Пример заполнения поля 4 титульного листа на книгу приведен в приложении Б.
Листы документа нумеруют в пределах каждой части, каждую часть начинают на листах с основной надписью по форме ГОСТ 2.104 и форме 3 ГОСТ Р 21.1101.
4.1.2 Разделы должны иметь порядковые номера в пределах всего документа (часть, книги), обозначенные арабскими цифрами без точки и записанные с абзацевого отступа. Подразделы должны иметь нумерацию в пределах каждого раздела. Номер подраздела состоит из номеров раздела и подраздела, разделенных точкой. В конце номера подраздела точки не ставится. Разделы, как и подразделы, могут состоять из одного или нескольких пунктов.
4.1.3 Если документ не имеет подразделов, то нумерация пунктов в нем должна быть в пределах каждого раздела, и номер пункта должен состоять из номеров раздела и пункта, разделенных точкой. В конце номера пункта точка не ставится, например: Если документ имеет подразделы, то нумерация пунктов должна быть в пределах подраздела и номер пункта должен состоять из номеров раздела, подраздела и пункта, разделенных точками, например: 4.1.4 Если раздел или подраздел состоит из одного пункта, он также нумеруется.
4.1.5 Если текст документа подразделяется только на пункты, они нумеруются порядковыми номерами в пределах документа.
4.1.6 Пункты, при необходимости, могут быть разбиты на подпункты, которые должны иметь порядковую нумерацию в пределах каждого пункта, например: 4.2.1.1, 4.2.1.2, 4.2.1.3 и т.д.
4.1.7 Внутри пунктов или подпунктов могут быть приведены перечисления.
Перед каждой позицией перечисления следует ставить дефис или при необходимости ссылки в тексте документа на одно из перечислений, строчную букву русского или латинского алфавитов, после которой ставится скобка. Для дальнейшей, детализации перечислений необходимо использовать арабские цифры, после которых, ставится скобка, а запись производится с абзацного отступа, как показано в примере. 4.1.8 Каждый пункт, подпункт и перечисление записывают с абзацного отступа.
4.1.9 Разделы, подразделы должны иметь заголовки. Пункты, как правило, заголовков не имеют.
Заголовки должны четко и кратко отражать содержание разделов, подразделов.
Заголовки следует печатать с прописной буквы без точки в конце, не подчеркивая. Переносы слов в заголовках не допускаются. Если заголовок состоит из двух предложений, их разделяют точкой.
Расстояние между заголовком и текстом при выполнении документа машинописным способом должно быть равно 3, 4 интервалам, при выполнении рукописным способом - 15 мм. Расстояние между заголовками раздела и подраздела - 2 интервала, при выполнении рукописным способом - 8 мм.
При выполнении текстовых документов автоматизированным способом допускается применять расстояния, близкие к указанным интервалам
4.1.10 Каждый раздел текстового документа рекомендуется начинать с нового листа (страницы).
4.1.11 В документе (части, книге) большого объема на первом (заглавном) листе и, при необходимости, на последующих листах помещают содержание, включающее номера и наименования разделов и подразделов с указанием номеров листов (страниц).
Если документ разбит на части (книги), то в конце содержания первой части (книги) перечисляют обозначение и наименование (при наличии) остальных частей (книг). Содержание включают в общее количество листов данного документа (части, книги).
Слово «Содержание» записывают в виде заголовка (симметрично тексту) с прописной буквы. Наименования, включенные в содержание, записывают строчными буквами, начиная с прописной буквы.
4.1.12 В конце текстового документа перед листом регистрации изменений допускается приводить список литературы, которая была использована при его составлении. Выполнение списка и ссылки на него в тексте - по ГОСТ 7.32. Список литературы включают в содержание документа.
4.1.13 Нумерация страниц документа и приложений, входящих в состав этого документа, должна быть сквозная. Допускается вместо сквозной нумерации страниц применять нумерацию страниц в пределах каждого раздела документа следующим образом:
При большом объеме документа допускается разделять его на части, а части, в случае необходимости, на книги. Каждую часть и книгу комплектуют отдельно. Всем частям дают наименования и присваивают обозначение документа. Начиная со второй части, к этому обозначению добавляют порядковый номер, например: ХХХХ.331112.032Ф0, ХХХХ.331112.032Ф01, ХХХХ.331112.032Ф02, и т.д. Всем книгам дают наименование и присваивают порядковый номер. Пример заполнения поля 4 титульного листа на книгу приведен в приложении Б.
Листы документа нумеруют в пределах каждой части, каждую часть начинают на листах с основной надписью по форме ГОСТ 2.104 и форме 3 ГОСТ Р 21.1101.
4.1.2 Разделы должны иметь порядковые номера в пределах всего документа (часть, книги), обозначенные арабскими цифрами без точки и записанные с абзацевого отступа. Подразделы должны иметь нумерацию в пределах каждого раздела. Номер подраздела состоит из номеров раздела и подраздела, разделенных точкой. В конце номера подраздела точки не ставится. Разделы, как и подразделы, могут состоять из одного или нескольких пунктов.
4.1.3 Если документ не имеет подразделов, то нумерация пунктов в нем должна быть в пределах каждого раздела, и номер пункта должен состоять из номеров раздела и пункта, разделенных точкой. В конце номера пункта точка не ставится, например: Если документ имеет подразделы, то нумерация пунктов должна быть в пределах подраздела и номер пункта должен состоять из номеров раздела, подраздела и пункта, разделенных точками, например: 4.1.4 Если раздел или подраздел состоит из одного пункта, он также нумеруется.
4.1.5 Если текст документа подразделяется только на пункты, они нумеруются порядковыми номерами в пределах документа.
4.1.6 Пункты, при необходимости, могут быть разбиты на подпункты, которые должны иметь порядковую нумерацию в пределах каждого пункта, например: 4.2.1.1, 4.2.1.2, 4.2.1.3 и т.д.
4.1.7 Внутри пунктов или подпунктов могут быть приведены перечисления.
Перед каждой позицией перечисления следует ставить дефис или при необходимости ссылки в тексте документа на одно из перечислений, строчную букву русского или латинского алфавитов, после которой ставится скобка. Для дальнейшей, детализации перечислений необходимо использовать арабские цифры, после которых, ставится скобка, а запись производится с абзацного отступа, как показано в примере. 4.1.8 Каждый пункт, подпункт и перечисление записывают с абзацного отступа.
4.1.9 Разделы, подразделы должны иметь заголовки. Пункты, как правило, заголовков не имеют.
Заголовки должны четко и кратко отражать содержание разделов, подразделов.
Заголовки следует печатать с прописной буквы без точки в конце, не подчеркивая. Переносы слов в заголовках не допускаются. Если заголовок состоит из двух предложений, их разделяют точкой.
Расстояние между заголовком и текстом при выполнении документа машинописным способом должно быть равно 3, 4 интервалам, при выполнении рукописным способом - 15 мм. Расстояние между заголовками раздела и подраздела - 2 интервала, при выполнении рукописным способом - 8 мм.
При выполнении текстовых документов автоматизированным способом допускается применять расстояния, близкие к указанным интервалам
4.1.10 Каждый раздел текстового документа рекомендуется начинать с нового листа (страницы).
4.1.11 В документе (части, книге) большого объема на первом (заглавном) листе и, при необходимости, на последующих листах помещают содержание, включающее номера и наименования разделов и подразделов с указанием номеров листов (страниц).
Если документ разбит на части (книги), то в конце содержания первой части (книги) перечисляют обозначение и наименование (при наличии) остальных частей (книг). Содержание включают в общее количество листов данного документа (части, книги).
Слово «Содержание» записывают в виде заголовка (симметрично тексту) с прописной буквы. Наименования, включенные в содержание, записывают строчными буквами, начиная с прописной буквы.
4.1.12 В конце текстового документа перед листом регистрации изменений допускается приводить список литературы, которая была использована при его составлении. Выполнение списка и ссылки на него в тексте - по ГОСТ 7.32. Список литературы включают в содержание документа.
4.1.13 Нумерация страниц документа и приложений, входящих в состав этого документа, должна быть сквозная. Допускается вместо сквозной нумерации страниц применять нумерацию страниц в пределах каждого раздела документа следующим образом:
Спойлер
(подробнее см. ГОСТ)
4.2.18 Формулы, за исключением формул, помещаемых в приложении, должны нумероваться сквозной нумерацией арабскими цифрами, которые записывают на уровне формулы справа в круглых скобках. Одну формулу обозначают - (1).
Ссылки в тексте на порядковые номера формул дают в скобках, например, ¼ в формуле (1).
Формулы, помещаемые в приложениях, должны нумероваться отдельной нумерацией арабскими цифрами в пределах каждого приложения с добавлением перед каждой цифрой обозначения приложения, например формула (B.1).
Допускается нумерация формул в пределах раздела. В этом случае номер формулы состоит из номера раздела и порядкового номера формулы, разделенных точкой, например (3.1).
4.2.19 Порядок изложения в документах математических уравнений такой же, как и формул.
4.2.20 Примечания приводят в документах, если необходимы пояснения или справочные данные к содержанию текста, таблиц или графического материала.
Примечания не должны содержать требований.
4.2.21 Примечания следует помещать непосредственно после текстового, графического материала или в таблице, к которым относятся эти примечания, и печатать с прописной буквы с абзаца. Если примечание одно, то после слова «Примечание» ставится тире и примечание печатается тоже с прописной буквы. Одно примечание не нумеруют. Несколько примечаний нумеруют по порядку арабскими цифрами. Примечание к таблице помещают в конце таблицы над линией, обозначающей окончание таблицы.
4.2.18 Формулы, за исключением формул, помещаемых в приложении, должны нумероваться сквозной нумерацией арабскими цифрами, которые записывают на уровне формулы справа в круглых скобках. Одну формулу обозначают - (1).
Ссылки в тексте на порядковые номера формул дают в скобках, например, ¼ в формуле (1).
Формулы, помещаемые в приложениях, должны нумероваться отдельной нумерацией арабскими цифрами в пределах каждого приложения с добавлением перед каждой цифрой обозначения приложения, например формула (B.1).
Допускается нумерация формул в пределах раздела. В этом случае номер формулы состоит из номера раздела и порядкового номера формулы, разделенных точкой, например (3.1).
4.2.19 Порядок изложения в документах математических уравнений такой же, как и формул.
4.2.20 Примечания приводят в документах, если необходимы пояснения или справочные данные к содержанию текста, таблиц или графического материала.
Примечания не должны содержать требований.
4.2.21 Примечания следует помещать непосредственно после текстового, графического материала или в таблице, к которым относятся эти примечания, и печатать с прописной буквы с абзаца. Если примечание одно, то после слова «Примечание» ставится тире и примечание печатается тоже с прописной буквы. Одно примечание не нумеруют. Несколько примечаний нумеруют по порядку арабскими цифрами. Примечание к таблице помещают в конце таблицы над линией, обозначающей окончание таблицы.
Спойлер
4.3.1 Количество иллюстраций должно быть достаточным для пояснения излагаемого текста. Иллюстрации могут быть расположены как по тексту документа (возможно ближе к соответствующим частям текста), так и в конце его. Иллюстрации должны быть выполнены в соответствии с требованиями стандартов ЕСКД и СПДС. Иллюстрации, за исключением иллюстраций приложений, следует нумеровать арабскими цифрами сквозной нумерацией. Если рисунок один, то он обозначается «Рисунок 1».
Иллюстрации каждого приложения обозначают отдельной нумерацией арабскими цифрами с добавлением перед цифрой обозначения приложения. Например - Рисунок А.3.
Допускается не нумеровать мелкие иллюстрации (мелкие рисунки), размещенные непосредственно в тексте и на которые в дальнейшем нет ссылок
Допускается нумеровать иллюстрации в пределах раздела. В этом случае номер иллюстрации состоит из номера раздела и порядкового номера иллюстрации, разделенных точкой. Например - Рисунок 1.1.
При ссылках на иллюстрации следует писать « в соответствии с рисунком 2» при сквозной нумерации и «в соответствии с рисунком 1.2» при нумерации в пределах раздела.
Иллюстрации, при необходимости, могут иметь наименование и пояснительные данные (подрисуночный текст). Слово «Рисунок» и наименование помещают после пояснительных данных и располагают следующим образом:
Рисунок 1 - Детали прибора.
4.3.2 Если в тексте документа имеется иллюстрация, на которой изображены составные части изделия, то на этой иллюстрации должны быть указаны номера позиций этих составных частей в пределах данной иллюстрации, которые располагают в возрастающем порядке, за исключением повторяющихся позиций, а для электро- и радиоэлементов - позиционные обозначения, установленные в схемах данного изделия.
Исключение составляют электро- и радиоэлементы, являющиеся органами регулировки или настройки, для которых (кроме номера позиции) дополнительно указывают в подрисуночном тексте назначение каждой регулировки и настройки, позиционное обозначение и надписи на соответствующей планке или панели.
Допускается, при необходимости, номер, присвоенный составной части изделия на иллюстрации, сохранять в пределах документа.
Для схем расположения элементов конструкций и архитектурно-строительных чертежей зданий (сооружений) указывают марки элементов.
При ссылке в тексте на отдельные элементы деталей (отверстия, пазы, канавки, буртики и др.) их обозначают прописными буквами русского алфавита.
Указанные данные наносят на иллюстрациях согласно ГОСТ 2.109.
4.3.4 Материал, дополняющий текст документа, допускается помещать в приложениях. Приложениями могут быть, например, графический материал, таблицы большого формата, расчеты, описания аппаратуры и приборов, описания алгоритмов и программ задач, решаемых на ЭВМ и т.д.
Приложение оформляют как продолжение данного документа на последующих его листах или выпускают в виде самостоятельного документа.
4.3.5 Приложения могут быть обязательными и информационными.
Информационные приложения могут быть рекомендуемого или справочного характера.
4.3.6 В тексте документа на все приложения должны быть даны ссылки. Степень обязательности приложений при ссылках не указывается. Приложения располагают в порядке ссылок на них в тексте документа, за исключением информационного приложения «Библиография», которое располагают последним.
4.3.7 Каждое приложение следует начинать с новой страницы с указанием наверху посередине страницы слова «Приложение» и его обозначения, а под ним в скобках для обязательного приложения пишут слово «обязательное», а для информационного - «рекомендуемое» или «справочное».
Приложение должно иметь заголовок, который записывают симметрично относительно текста с прописной буквы отдельной строкой.
4.3.8 Приложения обозначают заглавными, буквами русского алфавита, начиная с А, за исключением букв Ё, З, Й, О, Ч, Ь, Ы, Ъ. После слова «Приложение» следует буква, обозначающая его последовательность.
Допускается обозначение приложений буквами латинского алфавита, за исключением букв I и О.
В случае полного использования букв русского и латинского алфавитов допускается обозначать приложения арабскими цифрами. Если в документе одно приложение, оно обозначается «Приложение А».
4.3.9 Приложения, как правило, выполняют на листах формата А4. Допускается оформлять приложения на листах формата A3, А4´3, А4´4, А2 и А1 по ГОСТ 2.301.
4.3.10 Текст каждого приложения, при необходимости, может быть разделен на разделы, подразделы, пункты, подпункты, которые нумеруют в пределах каждого приложения. Перед номером ставится обозначение этого приложения.
Приложения должны иметь общую с остальной частью документа сквозную нумерацию страниц.
4.3.11 Все приложения должны быть перечислены в содержании документа (при наличии) с указанием их номеров и заголовков.
4.3.12 Приложения, выпускаемые в виде самостоятельного документа, оформляют по общим правилам - первый лист с основной надписью по ГОСТ 21.1101.
При необходимости такое приложение может иметь «Содержание».
4.3.13 Приложениям или книгам, выпущенным в виде самостоятельного документа, обозначение присваивают как части документа с указанием в коде документа их порядкового номера. Если приложение или книга имеют титульный лист, то на нем под наименованием документа указывают слово «Приложение» и его обозначение в случае двух и более приложений, например «Приложение Б» или «Книга» и ее порядковый номер, например «Книга 6».
4.3.14 Допускается в качестве приложения к документу использовать другие самостоятельно выпущенные конструкторские документы (габаритные чертежи, схемы и др.).
Документ, включая документ, к которому выпускаются приложения, комплектуют в альбом с составлением к нему описи альбома. Описи присваивают обозначение изделия, для которого разработан основной документ, и код ОП.
Опись составляют по форме 4 и 4а ГОСТ 2.106. Первым в нее записывают документ, для которого в качестве приложения применены другие конструкторские документы. Далее документы записывают в порядке их комплектования в альбом. При необходимости к альбому документов составляют титульный лист.
Иллюстрации каждого приложения обозначают отдельной нумерацией арабскими цифрами с добавлением перед цифрой обозначения приложения. Например - Рисунок А.3.
Допускается не нумеровать мелкие иллюстрации (мелкие рисунки), размещенные непосредственно в тексте и на которые в дальнейшем нет ссылок
Допускается нумеровать иллюстрации в пределах раздела. В этом случае номер иллюстрации состоит из номера раздела и порядкового номера иллюстрации, разделенных точкой. Например - Рисунок 1.1.
При ссылках на иллюстрации следует писать « в соответствии с рисунком 2» при сквозной нумерации и «в соответствии с рисунком 1.2» при нумерации в пределах раздела.
Иллюстрации, при необходимости, могут иметь наименование и пояснительные данные (подрисуночный текст). Слово «Рисунок» и наименование помещают после пояснительных данных и располагают следующим образом:
Рисунок 1 - Детали прибора.
4.3.2 Если в тексте документа имеется иллюстрация, на которой изображены составные части изделия, то на этой иллюстрации должны быть указаны номера позиций этих составных частей в пределах данной иллюстрации, которые располагают в возрастающем порядке, за исключением повторяющихся позиций, а для электро- и радиоэлементов - позиционные обозначения, установленные в схемах данного изделия.
Исключение составляют электро- и радиоэлементы, являющиеся органами регулировки или настройки, для которых (кроме номера позиции) дополнительно указывают в подрисуночном тексте назначение каждой регулировки и настройки, позиционное обозначение и надписи на соответствующей планке или панели.
Допускается, при необходимости, номер, присвоенный составной части изделия на иллюстрации, сохранять в пределах документа.
Для схем расположения элементов конструкций и архитектурно-строительных чертежей зданий (сооружений) указывают марки элементов.
При ссылке в тексте на отдельные элементы деталей (отверстия, пазы, канавки, буртики и др.) их обозначают прописными буквами русского алфавита.
Указанные данные наносят на иллюстрациях согласно ГОСТ 2.109.
4.3.4 Материал, дополняющий текст документа, допускается помещать в приложениях. Приложениями могут быть, например, графический материал, таблицы большого формата, расчеты, описания аппаратуры и приборов, описания алгоритмов и программ задач, решаемых на ЭВМ и т.д.
Приложение оформляют как продолжение данного документа на последующих его листах или выпускают в виде самостоятельного документа.
4.3.5 Приложения могут быть обязательными и информационными.
Информационные приложения могут быть рекомендуемого или справочного характера.
4.3.6 В тексте документа на все приложения должны быть даны ссылки. Степень обязательности приложений при ссылках не указывается. Приложения располагают в порядке ссылок на них в тексте документа, за исключением информационного приложения «Библиография», которое располагают последним.
4.3.7 Каждое приложение следует начинать с новой страницы с указанием наверху посередине страницы слова «Приложение» и его обозначения, а под ним в скобках для обязательного приложения пишут слово «обязательное», а для информационного - «рекомендуемое» или «справочное».
Приложение должно иметь заголовок, который записывают симметрично относительно текста с прописной буквы отдельной строкой.
4.3.8 Приложения обозначают заглавными, буквами русского алфавита, начиная с А, за исключением букв Ё, З, Й, О, Ч, Ь, Ы, Ъ. После слова «Приложение» следует буква, обозначающая его последовательность.
Допускается обозначение приложений буквами латинского алфавита, за исключением букв I и О.
В случае полного использования букв русского и латинского алфавитов допускается обозначать приложения арабскими цифрами. Если в документе одно приложение, оно обозначается «Приложение А».
4.3.9 Приложения, как правило, выполняют на листах формата А4. Допускается оформлять приложения на листах формата A3, А4´3, А4´4, А2 и А1 по ГОСТ 2.301.
4.3.10 Текст каждого приложения, при необходимости, может быть разделен на разделы, подразделы, пункты, подпункты, которые нумеруют в пределах каждого приложения. Перед номером ставится обозначение этого приложения.
Приложения должны иметь общую с остальной частью документа сквозную нумерацию страниц.
4.3.11 Все приложения должны быть перечислены в содержании документа (при наличии) с указанием их номеров и заголовков.
4.3.12 Приложения, выпускаемые в виде самостоятельного документа, оформляют по общим правилам - первый лист с основной надписью по ГОСТ 21.1101.
При необходимости такое приложение может иметь «Содержание».
4.3.13 Приложениям или книгам, выпущенным в виде самостоятельного документа, обозначение присваивают как части документа с указанием в коде документа их порядкового номера. Если приложение или книга имеют титульный лист, то на нем под наименованием документа указывают слово «Приложение» и его обозначение в случае двух и более приложений, например «Приложение Б» или «Книга» и ее порядковый номер, например «Книга 6».
4.3.14 Допускается в качестве приложения к документу использовать другие самостоятельно выпущенные конструкторские документы (габаритные чертежи, схемы и др.).
Документ, включая документ, к которому выпускаются приложения, комплектуют в альбом с составлением к нему описи альбома. Описи присваивают обозначение изделия, для которого разработан основной документ, и код ОП.
Опись составляют по форме 4 и 4а ГОСТ 2.106. Первым в нее записывают документ, для которого в качестве приложения применены другие конструкторские документы. Далее документы записывают в порядке их комплектования в альбом. При необходимости к альбому документов составляют титульный лист.
Спойлер
4.4.1 Таблицы применяют для лучшей наглядности и удобства сравнения показателей. Название таблицы, при его наличии, должно отражать ее содержание, быть точным, кратким. Название следует помещать над таблицей.
При переносе части таблицы на ту же или другие страницы название помещают только над первой частью таблицы.
Цифровой материал, как правило, оформляют в виде таблиц в соответствии с рисунком 1: 4.4.2 Таблицы, за исключением таблиц приложений, следует нумеровать арабскими цифрами сквозной нумерацией.
Таблицы каждого приложения обозначают отдельной нумерацией арабскими цифрами с добавлением перед цифрой обозначения приложения. Если в документе одна таблица, она должна быть обозначена «Таблица 1» или «Таблица B.1», если она приведена в приложении В.
Допускается нумеровать таблицы в пределах раздела. В этом случае номер таблицы состоит из номера раздела и порядкового номера таблицы, разделенных точкой.
4.4.3 На все таблицы документа должны быть приведены ссылки в тексте документа, при ссылке следует писать слово «таблица» с указанием ее номера.
4.4.4 Заголовки граф и строк таблицы следует писать с прописной буквы, а подзаголовки граф - со строчной буквы, если они составляют одно предложение с заголовком, или с прописной буквы, если они имеют самостоятельное значение. В конце заголовков и подзаголовков таблиц точки не ставят. Заголовки и подзаголовки граф указывают в единственном числе.
4.4.5 Таблицы слева, справа и снизу, как правило, ограничивают линиями.
Разделять заголовки и подзаголовки боковика и граф диагональными линиями не допускается.
Горизонтальные и вертикальные линии, разграничивающие строки таблицы, допускается не проводить, если их отсутствие не затрудняет пользование таблицей.
Заголовки граф, как правило, записывают параллельно строкам таблицы. При необходимости допускается перпендикулярное расположение заголовков граф.
Головка таблицы должна быть отделена линией от остальной части таблицы.
Высота строк таблицы должна быть не менее 8 мм.
4.4.6 Таблицу, в зависимости от ее размера, помещают под текстом, в котором впервые дана ссылка на нее, или на следующей странице, а, при необходимости, в приложении к документу.
Допускается помещать таблицу вдоль длинной стороны листа документа.
4.4.7 Если строки или графы таблицы выходят за формат страницы, ее делят на части, помещая одну часть под другой или рядом, при этом в каждой части таблицы повторяют ее головку и боковик. При делении таблицы на части допускается ее головку или боковик заменять соответственно номером граф и строк. При этом нумеруют арабскими цифрами графы и (или) строки первой части таблицы.
Слово «Таблица» указывают один раз слева над первой частью таблицы, над другими частями пишут слова «Продолжение таблицы» с указанием номера (обозначения) таблицы.
При подготовке текстовых документов с использованием программных средств надпись «Продолжение таблицы» допускается не указывать.
Если в конце страницы таблица прерывается и ее продолжение будет на следующей странице, в первой части таблицы нижнюю горизонтальную линию, ограничивающую таблицу, допускается не проводить.
Таблицы с небольшим количеством граф допускается делить на части и помещать одну часть рядом с другой на одной странице, при этом повторяют головку таблицы. Рекомендуется разделять части таблицы двойной линией или линией толщиной 2s.
4.4.8 Графу «Номер по порядку» в таблицу включать не допускается. Нумерация граф таблицы арабскими цифрами допускается в тех случаях, когда в тексте документа имеются ссылки на них, при делении таблицы на части, а также при переносе части таблицы на следующую страницу
4.4.16 Текст, повторяющийся в строках одной и той же графы и состоящий из одиночных слов, чередующихся с цифрами, заменяют кавычками . Если повторяющийся текст состоит из двух и более слов, при первом повторении его заменяют словами «То же», а далее кавычками. Если предыдущая фраза является частью последующей, то допускается заменить ее словами «То же» и добавить дополнительные сведения.
При наличии горизонтальных линий текст необходимо повторять.
4.4.17 Заменять кавычками повторяющиеся в таблице цифры, математические знаки, знаки процента и номера, обозначение марок материалов и типоразмеров изделий, обозначения нормативных документов не допускается.
4.4.18 При отсутствии отдельных данных в таблице следует ставить прочерк (тире).
При переносе части таблицы на ту же или другие страницы название помещают только над первой частью таблицы.
Цифровой материал, как правило, оформляют в виде таблиц в соответствии с рисунком 1: 4.4.2 Таблицы, за исключением таблиц приложений, следует нумеровать арабскими цифрами сквозной нумерацией.
Таблицы каждого приложения обозначают отдельной нумерацией арабскими цифрами с добавлением перед цифрой обозначения приложения. Если в документе одна таблица, она должна быть обозначена «Таблица 1» или «Таблица B.1», если она приведена в приложении В.
Допускается нумеровать таблицы в пределах раздела. В этом случае номер таблицы состоит из номера раздела и порядкового номера таблицы, разделенных точкой.
4.4.3 На все таблицы документа должны быть приведены ссылки в тексте документа, при ссылке следует писать слово «таблица» с указанием ее номера.
4.4.4 Заголовки граф и строк таблицы следует писать с прописной буквы, а подзаголовки граф - со строчной буквы, если они составляют одно предложение с заголовком, или с прописной буквы, если они имеют самостоятельное значение. В конце заголовков и подзаголовков таблиц точки не ставят. Заголовки и подзаголовки граф указывают в единственном числе.
4.4.5 Таблицы слева, справа и снизу, как правило, ограничивают линиями.
Разделять заголовки и подзаголовки боковика и граф диагональными линиями не допускается.
Горизонтальные и вертикальные линии, разграничивающие строки таблицы, допускается не проводить, если их отсутствие не затрудняет пользование таблицей.
Заголовки граф, как правило, записывают параллельно строкам таблицы. При необходимости допускается перпендикулярное расположение заголовков граф.
Головка таблицы должна быть отделена линией от остальной части таблицы.
Высота строк таблицы должна быть не менее 8 мм.
4.4.6 Таблицу, в зависимости от ее размера, помещают под текстом, в котором впервые дана ссылка на нее, или на следующей странице, а, при необходимости, в приложении к документу.
Допускается помещать таблицу вдоль длинной стороны листа документа.
4.4.7 Если строки или графы таблицы выходят за формат страницы, ее делят на части, помещая одну часть под другой или рядом, при этом в каждой части таблицы повторяют ее головку и боковик. При делении таблицы на части допускается ее головку или боковик заменять соответственно номером граф и строк. При этом нумеруют арабскими цифрами графы и (или) строки первой части таблицы.
Слово «Таблица» указывают один раз слева над первой частью таблицы, над другими частями пишут слова «Продолжение таблицы» с указанием номера (обозначения) таблицы.
При подготовке текстовых документов с использованием программных средств надпись «Продолжение таблицы» допускается не указывать.
Если в конце страницы таблица прерывается и ее продолжение будет на следующей странице, в первой части таблицы нижнюю горизонтальную линию, ограничивающую таблицу, допускается не проводить.
Таблицы с небольшим количеством граф допускается делить на части и помещать одну часть рядом с другой на одной странице, при этом повторяют головку таблицы. Рекомендуется разделять части таблицы двойной линией или линией толщиной 2s.
4.4.8 Графу «Номер по порядку» в таблицу включать не допускается. Нумерация граф таблицы арабскими цифрами допускается в тех случаях, когда в тексте документа имеются ссылки на них, при делении таблицы на части, а также при переносе части таблицы на следующую страницу
4.4.16 Текст, повторяющийся в строках одной и той же графы и состоящий из одиночных слов, чередующихся с цифрами, заменяют кавычками . Если повторяющийся текст состоит из двух и более слов, при первом повторении его заменяют словами «То же», а далее кавычками. Если предыдущая фраза является частью последующей, то допускается заменить ее словами «То же» и добавить дополнительные сведения.
При наличии горизонтальных линий текст необходимо повторять.
4.4.17 Заменять кавычками повторяющиеся в таблице цифры, математические знаки, знаки процента и номера, обозначение марок материалов и типоразмеров изделий, обозначения нормативных документов не допускается.
4.4.18 При отсутствии отдельных данных в таблице следует ставить прочерк (тире).
Спойлер
4.5.1 Если необходимо пояснить отдельные данные, приведенные в документе, то эти данные следует обозначать надстрочными знаками сноски.
Сноски в тексте располагают с абзацного отступа в конце страницы, на которой они обозначены, и отделяют от текста короткой тонкой горизонтальной линией с левой стороны, а к данным, расположенным в таблице, в конце таблицы над линией, обозначающей окончание таблицы.
4.5.2 Знак сноски ставят непосредственно после того слова, числа, символа, предложения, к которому дается пояснение, и перед текстом пояснения.
4.5.3 Знак сноски выполняют арабскими цифрами со скобкой и помещают на уровне верхнего обреза шрифта.
Пример - « печатающее устройство 2) …»
Нумерация сносок отдельная для каждой страницы.
Допускается вместо цифр выполнять сноски звездочками: *.
Применять более четырех звездочек не рекомендуется.
Сноски в тексте располагают с абзацного отступа в конце страницы, на которой они обозначены, и отделяют от текста короткой тонкой горизонтальной линией с левой стороны, а к данным, расположенным в таблице, в конце таблицы над линией, обозначающей окончание таблицы.
4.5.2 Знак сноски ставят непосредственно после того слова, числа, символа, предложения, к которому дается пояснение, и перед текстом пояснения.
4.5.3 Знак сноски выполняют арабскими цифрами со скобкой и помещают на уровне верхнего обреза шрифта.
Пример - « печатающее устройство 2) …»
Нумерация сносок отдельная для каждой страницы.
Допускается вместо цифр выполнять сноски звездочками: *.
Применять более четырех звездочек не рекомендуется.
Спойлер
4.6.1 Примеры могут быть приведены в тех случаях, когда они поясняют требования документа или способствуют более краткому их изложению.
4.6.2 Примеры размещают, нумеруют и оформляют так же, как и примечания (по 4.2.21).
4.6.2 Примеры размещают, нумеруют и оформляют так же, как и примечания (по 4.2.21).
Если хотите выразить кому-то благодарность и/или почтение, то нажмите кнопку "Поблагодарить за сообщение автора"
-
Mr. Baga
- Заслуженный эколог
- Сообщения: 444
- Зарегистрирован: 08 сен 2008, 08:42
- Награды: 5
- Откуда: Казань
- Благодарил (а): 51 раз
- Поблагодарили: 161 раз
- Контактная информация:
Таблицы в колонтитулах MS Word
Полезная информация по созданию "штампика" в .doc файле.
Может кому пригодится. :)
Может кому пригодится. :)
-
Mr. Baga
- Заслуженный эколог
- Сообщения: 444
- Зарегистрирован: 08 сен 2008, 08:42
- Награды: 5
- Откуда: Казань
- Благодарил (а): 51 раз
- Поблагодарили: 161 раз
- Контактная информация:
Re: Таблицы в колонтитулах MS Word
Вот прикреплю готовые :)
- Вложения
-
Таблицы в колонтитулах.rar- (377.62 КБ) 1489 скачиваний
